基本信息
效果圖行政區域: 龍潭
項目位置: 鐵東龍山路銘山綠洲入口北行300米雲豐實業公司對過
交通狀況: 6 、55、18、44、112路
建築類型: 多層
物業類別: 普通住宅
開發商: 吉林市大江房地產開發有限責任公司
詳細信息
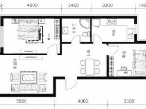
戶型圖產權類型: 大產權房
容積率: 1.44
綠化率: 30%
總戶數: 539
價格信息
峰雲印象價格:待定
售賣信息
售樓處售樓地址: 龍潭區武漢路與承德街交匯處北100米
售樓電話: 400-606-6969轉77919
開盤時間: 20120700
入住時間: 20130500
項目介紹
戶型圖據項目負責人介紹,峰雲印象項目分為兩期開發,總建築面積約18萬平方米,是鐵東乃至龍潭區內較具規模的房地產項目之一。一期占地面積3.6萬平方米,建築面積5.27萬平方米,由13棟多層組成。峰雲印象的戶型設計緊湊實用,幾乎做到了盡善盡美,每種戶型都會給您的居家生活帶來輕鬆完美的享受。面積區間為50——100平方米。整個小區還配有大量商業,浴池、超市、診所、幼稚園、乾洗店等應有盡有,使您足不出區,就可以體驗一站式服務。
峰雲印象由大連先鋒建築設計諮詢有限公司和美國ANDRIA.D建築設計有限公司強強聯手、精心設計。項目追求細節的完美、注重產品的品質。整個項目建築採用簡歐風格,外立面為淺黃色和淺咖色為主色調,採用國際流行的高級仿石材塗料,抗風化、抗褪色,外觀大氣典雅,將樓體的立體感和層次感彰顯的淋漓盡致;窗戶採用造價最高的斷橋鋁三玻窗材質,保溫隔熱性好、防水功能性強、有效減少噪音,大大的提升了項目建築品質;樓內採用大理石地面、白鋼扶手;下水管採用雙壁螺旋靜音管,充分體現人性化設計理念。
峰雲印象是鐵東區域內唯一採用吉化供熱的新建項目,管線直接進入小區,冬天室內溫度可達25——27度,讓溫暖與陽光伴您度過一個寒冷的冬天。
峰雲印象傾心打造一個全封閉、智慧型化物業管理小區,給您一個舒適、安全的生活環境。
為真誠回饋江城市民,項目除六層贈送超大面積、超高舉架閣樓、首層贈送20平米左右的“私家花園”外,前200組成功預約2——5層的客戶,還可私享10——15平方米的“業主莊園”。您可栽花、種草、植樹、種菜,遠離城中的喧囂,親近自然,盡情享受快樂的田園生活,這在我市的任何一個小區是做不到的。項目全心投入,致力打造“健康住宅、健康人生”,讓業主得到更多的實惠,擁有與眾不同的綠色健康的居住環境。
峰雲印象項目現已全面開工,為保證工程質量及施工進度,項目選擇了4家實力建築企業。7月20號基礎完工,預計9月中旬主體封頂,2013年5月實現入祝

