基本信息
社區實景行政區域: 西雙版納
項目位置: 西雙版納旅遊度假區曼弄楓片區
交通狀況: 西雙版納旅遊度假區曼弄楓片區
建築類型: 板樓,小高層
物業類別: 公寓,別墅,商鋪
主力戶型: 40-80平米
開發商: 西雙版納安廈房地產有限公司
詳細信息
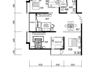
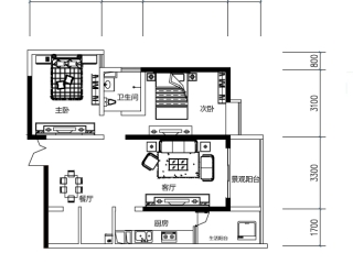
戶型圖產權類型: 大產權房
建築面積: 0平方米
占地面積: 468000平方米
價格信息
售賣信息
售樓處售樓地址: 西雙版納旅遊度假區曼弄楓片區
售樓電話: 400-606-6969轉66955
開盤時間: 2011年9月
項目介紹
戶型圖雨林 聖堤亞納項目展現“熱、傣、水、邊”特色,以挖掘片區在地理環境、文化積澱和歷史發展共同作用下做蘊含的特質主線,以熱帶獨特的自然環境、濃郁的民族風情、優越的區位優勢為基點,拓展片區的區域特色,吧項目規劃成為凸顯歷史、民風、水景、設施現代、服務完善、生態優良、文化獨特的集觀光旅遊、休閒度假、療養體訓、會議商務、精品商業等為一體的文化品位高、民族風情濃、人居環境佳的旅遊度假項目。既可尊享極高品質的獨家酒店生活,也能感受到綺麗的民族特色文化。
在全民休閒創富的大潮中,西雙版納憑獨特的地理位置——通往瀾滄江—湄公河次區域旅遊的國際化樞紐城市,啟動了一批國際引擎項目,譜寫著一曲浪漫、休閒和奔放的東南亞風情之歌,備受矚目的旅遊地產新項目雨林 亞堤亞納被稱為西雙版納旅遊二次創業的重點培育與推廣項目,其投資價值注定了成為西雙版納旅遊休閒創富典範。
雨林 聖堤亞納以五星級酒店為項目標誌性建築,項目設計結合熱帶雨林特有的景象,並融入了西雙版納傣族傳統的街巷格局、民居院落。置身於其中,既可尊享極高品質的度假酒店生活,也能感受到綺麗的民族特色文化。

