樓盤介紹
天晨花溪碧位於成都市北三環外商貿之都---大豐,規劃用地面積60畝,總建築面積20.25萬平方米。建築採用現代簡約風格,由8棟高層電梯公寓組成,分二期開發。
項目北接成彭高架、西臨九道堰、東連捷運一號線大豐站點,距北三環九里堤片區僅5公里。 項目在前期規劃設計中便充分考慮了用地控制、朝向、日照、風向利用、地形、面寬進深、層高層數等因素,通過新型節材鋼筋套用技術、可循環利用施工材料、高性能施工技術、智慧型化建築控制技術以及綠化景觀用水控制技術、智慧型程控微噴灌技術、樹木移植技術、人工綠化栽培技術等住宅低碳技術,全力打造現代、綠色、低碳、環保的高品質示範樓盤。
基本信息
物業類別:住房
項目特色:宜居生態地產,捷運沿線
建築類別:塔樓 高層
裝修狀況:毛坯
所屬區域:新都區
物業地址:新都大豐街道蓉北路三段223號(大豐鎮公立衛生院對面)
價 格:4800元/㎡
交通狀況:22路、24路、512路大豐站
開盤時間:2010-11-10
入住時間:2012-7
容 積 率:4.26
綠 化 率:30%
物 業 費:1.20元/平方米·月
物業公司:瑞誠物業
開 發 商:成都景豐嘉信置業有限公司
預售許可證: 成房預售新都字第1035、1040號
售樓地址:大豐街道蓉北路三段223號(大豐鎮公立衛生院對面)
周邊配套
醫院:大豐公立醫院
學校:大豐中心國小、雙語學校
超市:紅旗超市、互惠超市、綜合市場
銀行:農行、工行、中國銀行等
其他:游泳池,健身廣場、羽毛球場、商業街等
樓盤圖片
天晨花溪碧效果圖
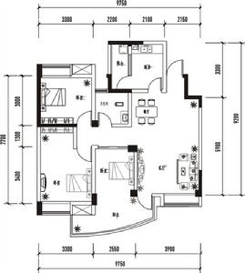
天晨花溪碧戶型圖
天晨花溪碧交通圖