基本信息
社區實景行政區域: 高新技術產業園區
項目位置: 建設路與龍華道交叉口
交通狀況: 114路、65路、43路、59路
建築類型: 高層
物業類別: 商住
主力戶型: 待定
開發商: 元龍房地產開發有限公司
詳細信息
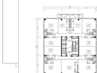
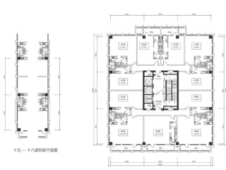
戶型圖產權年限: 70
產權類型: 大產權房
開工時間: 20101200
容積率: 7.0
總戶數: 246
建築面積: 25199.07平方米
占地面積: 3874平方米
價格信息
元龍第1棟價格:待定
售賣信息
售樓處售樓地址: 建設路與龍華道交叉口元龍房地產一層
售樓電話: 400-606-6969轉25322
開盤時間: 20110900
銷售許可證: (唐)房預售證第792號
項目介紹
戶型圖第1棟是一個具有革命意義的產品、一套具備無限延展性的創意組合、具有一線開發品牌、一級產品配置、一類服務標準、一品SOHO形象,在物理體量上是單一、產品類型上是獨一、市場位席上是第一、稀缺價值上是唯一。
第1棟採用同層排水技術,與高科技技術完美的結合,創造出第1棟富有個性意識、精緻時尚的SOHO產品。SOHO是對自由職業者的另一種稱謂,同時也代表一種自由、彈性而新型的工作方式。
第1棟獨特的魅力之處在於靈活的戶型分割、更多的機動空間、每戶獨立的廚房衛寓天然氣入戶、大面積落地窗、露天陽台等。第1棟項目在最大程度滿足辦公需求的同時,也能保證生活環境的優雅與高尚。
SOHO產品掌控了限購令之外的房地產投資市場,商業項目不限購、不限貸,重有高額穩定收益,第1棟將成為房地產投資的最佳產品。

