基本信息
社區實景行政區域: 橋西區
項目位置: 橋西中山西路與中華南大街交匯處南行100米路西
交通狀況: 30路、8路、13路、31路 人民商場站下車(中華南大街路西)
建築類型: 板塔結合
物業類別: 寫字樓
開發商: 石家莊寶力房地產開發有限公司
物業費: 2.70元/月/平方米
詳細信息
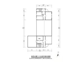
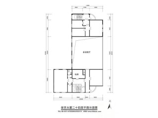
戶型圖產權年限: 40年
產權類型: 大產權房
開工時間: 20070101
容積率: 9.00
綠化率: 30%
建築面積: 30000平方米
占地面積: 3159平方米
周邊配套
周邊配套周邊配套: 辦公:金圓大廈、中華商務、軍創國際、東方城市廣嘗華銀大廈、祥源大廈、華海環球大廈等;
銀行:建設銀行、農業銀行、交通銀行、商業銀行、中國銀行、工商銀行、華夏銀行等;
購物:新百購物廣場,東方城市購物廣場,天元名品等;
餐飲:娛樂世紀大飯店、娃哈哈大酒店、好事咖啡、百客咖啡、必勝客及南花園餐飲娛樂街等;
其它:精品店、酒吧、健身、休閒場所
車位數: 充足
供暖方式: 市政
採暖費: 市政
價格信息
保藝大廈價格:均價12000元/平米
售賣信息
售樓處售樓地址: 中華大街18號(中山路和中華大街交叉口南行100米)項目9樓
售樓電話: 400-606-6969轉67292
開盤時間: 2009年
入住時間: 2010年10月1日
銷售許可證: 預售許可證號464-1號
項目介紹
戶型圖內部功能分區:地下一、二層為車庫。1-4層為商業,6-22層為辦公,23-25層為多功能廳、大會議室。
項目周圍各大金融機構遍布:交通銀行、建設銀行、農業銀行,華夏銀行、國家開發銀行、中國銀行、工商銀行橋西支行、石家莊商業銀行、中國人民銀行石家莊中心支行等,省政府發展改革委員會大廈、省人民保險公司大廈。中國保險監督委員會河北監督局等金融監管機構也分布在項目周邊。
優勢1、雄踞CBD核心地帶,鑄就核心品質
保藝大廈位於石家莊市中央商務區(CBD)核心地帶,中山西路與中華大街交匯口,緊鄰中央行政區與金融街,位於金融中心、商業中心、政治中心交界處,核心地段鑄就了保藝大廈的核心地位。
優勢2、四面環路、真正無障礙交通動線
保藝大廈北臨城市東西主幹道中山西路,東鄰中華大街街,南臨裕華路,四面形成環路抱擁,項目雄踞於貫通省會東西南北的中山、中華、裕華三條主幹道交匯處,具有道路寬闊、交通快捷便利優勢。
優勢33萬平米大規模寫字樓,建築氣勢磅礴
獨特的弧形外立面設計,彰顯大家風範,中空鍍膜防輻射玻璃幕牆,環保、健康、更節能
優勢4、7.6米大開間,8米小進深,自由分割
在完善建築最佳採光、通風性能的同時,兼顧了功能分區,使其更具有實用性。
優勢5、科技鑄就品質
寫字樓不僅要有優越的地理位置、還要有高標準的物業管理,完善的配套、高標準的智慧型化配置,保藝大廈位於石家莊cbd核心區域,它在5A寫字樓標準的基礎上加以創新和發展,採用了先進技術,節能、環保、防輻射的玻璃幕牆,先進的4管式空調新風系統,精鑄出性價比極高的辦公空間。

