分類
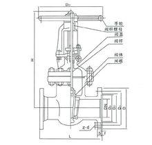
不鏽鋼閘閥結構圖不鏽鋼閘閥的種類 ,按密封面配置可分為楔式閘板式閘閥和平行閘板式閘閥 , 楔式閘板式閘閥又可分為:單閘極式、雙閘板式和彈性閘板式;平行閘板式閘閥可分為單閘板式和雙閘板式。按閥桿的螺紋位置劃分,可分為明桿閘閥和暗桿閘閥兩種。本類閥門在管道中一般應當水平安裝。
開啟閥門時,當閘板提升高度等於閥門通徑的1:1倍時,流體的通道完全暢通,但在運行時,此位置是無法監視的。實際使用時,是以閥桿的頂點作為標誌,即開不動的位置,作為它的全開位置。為考慮溫度變化出現鎖死現象 , 通常在開到頂點位置上 , 再倒回 1/2-1圈 , 作為全開閥門的位置。因此 , 閥門的全開位置,按閘板的位置(即行程〉來確定。
有的閘閥 , 閥桿螺母設在閘板上,手輪轉動帶動閥桿轉動 , 而使閘板提升 , 這種閥門叫做旋轉桿閘閥或叫暗桿閘閥。
工作原理
閘閥的閘板隨閥桿一起作直線運動的,叫升降桿閘閥 ( 亦叫明桿閘閥)。通常在升降桿上 有梯形螺紋,通過閥門頂端的螺母以及閥體上的導槽,將旋轉運動變為直線運動 , 也就是將操作轉矩變為操作推力。密封面可以只依靠介質壓力來密封 , 即依靠介質壓力將閘板的密封面壓向另一側的閥座來保證密封面的密封,這就是自密封。大部分閘閥是採用強制密封的 , 即閥門關閉時,要依靠外力強行將閘板壓向閥座 , 以保證密封面的密封性。
特點
1、選材考究,符合國內外相關標準,材料的全面質量高。
2、符合國內外先進標準的要求,密封可靠、性能優良、造型美觀。
3、密封副配對先進合理,閘板和閥座的密封面採用不同硬度的司太立(Stellite)鈷基硬質合金堆焊而成,密封可靠、硬度高、耐磨、耐高溫、耐腐蝕、抗擦傷性能好、壽命長。
4、閥桿經調質及表面氮化處理,有良好的抗腐蝕性、抗擦傷性和耐磨性。
5、採用楔式彈性閘板結構,中大口徑設定推力軸承,磨擦力小,並配有撞擊手動,啟閉輕鬆自如。
優缺點
優點
1、流體阻力小 , 密封面受介質的忡刷和侵蝕小。
2、開閉較省力。
3、介質流向不受限制 , 不擾流、不降低壓力。
4、形體簡單 , 結構長度短,製造工藝性好,適用範圍廣。
缺點
1、密封面之間易引起沖蝕和擦傷,維修比較困難。
2、外形尺寸較大,開啟需要一定的空間,開閉時間長。
3、結構較複雜。
技術參數
氣動閘閥1、公稱壓力:1.0MPa、1.6MPa、2.5MPa
2、殼體試驗壓力:P=1.5PN
3.密封試驗壓力:P=1.1PN
4、出口壓力:PN1.0MPa不鏽鋼閘閥0.09~0.8MPa
PN1.6MPa不鏽鋼閘閥0.10~1.2MPa
PN2.5MPa不鏽鋼閘閥0.15~1.6MPa
5、適用介質:水
6、適用溫度:0℃~180℃
執行標準
設計與製造:GB12234
結構長度:GB12221
法蘭尺寸:GB9113 JB79
壓力和溫度:GB9131
試驗和檢驗:GB/T13927 HB/T9092
結構特點
1、選材考究,符合國內外相關標準,材料的全面質量高。
2、符合國內外先進標準的要求,密封可靠、性能優良、造型美觀。
3、密封副配對先進合理,閘板和閥座的密封面採用不同硬度的司太立(Stellite)鈷基硬質合金堆焊而成,密封可靠、硬度高、耐磨、耐高溫、耐腐蝕、抗擦傷性能好、壽命長。
4、閥桿經調質及表面氮化處理,有良好的抗腐蝕性、抗擦傷性和耐磨性。
5、採用楔式彈性閘板結構,中大口徑設定推力軸承,磨擦力小,並配有撞擊手輪,啟閉輕鬆自如。
安裝與維護
1、手輪、手柄及傳動機構均不允許作起吊用,並嚴禁碰撞。
2、雙閘板閘閥應垂直安裝(即閥桿處於垂直位置 , 手輪在頂部 )。
3、帶有旁通閥的閘閥在開啟前應先打開旁通閥(以平衡進出口的壓差及減小開啟力 )。
4、帶傳動機構的閘閥,按產品使用說明書的規定安裝。
5、如果閥門經常開關使用 , 每月至少潤滑一次。

