標準名稱:無軸封磁力式耐酸鹼泵
產品別名:耐酸泵、耐腐泵、耐腐蝕泵、氟塑膠泵、耐酸鹼泵、塑寶磁力泵、塑膠磁力泵、襯氟磁力泵、塑寶牌磁力泵、氟塑膠磁力泵、耐腐蝕磁力泵SMF25250–1HC–6VRN
(1)(2)(3)(4)(5)(6)(7)(8)(9)(10)(11)
(1)SM:機型編號
(2)F-泵體材質FRPPK-泵體材質PVDFP-泵體材質CFRPP
(3)20-口徑3/4”25-口徑1”
(4)100-馬力100W180-馬力180W250-馬力260W400-馬力400W
(5)1-單相3-三相
(6)H-管式S-外牙式
(7)軸心材質S-SSICT-鈦C-陶瓷
(8)頻率:5-50Hz6-60Hz
(9)V-VITONN-NBRE-EPDM
(10)軸承材質R-RULON
(11)N-標準規格S-特殊規格
SM系列磁力泵產品說明
.採用塑膠材質射出成型,依客戶使用之化學性選擇不同材質,耐酸、耐鹼。.可耐大部份的化學性,適合各種酸鹼液輸送作業。
.適用溫度:FRPP/CFRPP-85℃以下,PVDF-90℃以下,視各種化學性質不同而定。
.塑膠射出成型之底座,輕便,耐腐蝕。
SM系列磁力泵磁力泵性能曲線圖
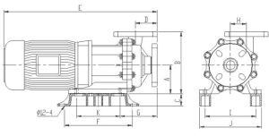
磁力泵性能曲線SM系列磁力泵磁力泵外形尺寸圖
磁力泵外形尺寸SM系列磁力泵磁力泵外形尺寸表
型號 進出口徑mm A B C D E F G H I J KSM-400 40*40 115 260 50 100 490 275 160 60 205 250 141
SM-401 40*40 115 260 50 100 490 275 160 60 205 250 141
SM-402 50*40 115 250 50 90 585 275 150 65 205 250 175
SM-502 50*50 115 250 50 90 585 275 150 65 205 250 175
SM-403 50*40 115 250 50 90 585 275 150 65 205 250 175
SM-503 50*50 115 250 50 90 585 275 150 65 205 250 175
SM-653 65*65 115 250 50 85 590 275 145 65 205 250 175
SM-505 50*50 115 250 50 90 620 275 150 65 205 250 175
SM-655 65*65 115 250 50 85 620 275 145 65 205 250 175
SM-401 40*40 115 250 50 90 505 275 150 65 205 250 175
SM-501 50*50 115 250 50 90 505 275 150 65 205 250 175
SM-651 65*65 115 250 50 85 585 275 145 65 205 250 175
SM系列磁力泵磁力泵分解圖
磁力泵分解圖
磁力泵法蘭
磁力泵葉輪SM系列磁力泵使用注意事項
1、啟動磁力泵時,首先要灌滿液體,完全關閉出口閥,並閉合電源開關。啟動後,慢慢打開出口閥至所需操作點。2、在關閉磁力泵時,先慢慢關閉出口閥,完全關閉出口閥後再使用電源開關斷開。快速關閉閥門會引起水擊,產生的額外壓力會使磁力泵損壞。
3、禁止在下列情況下安裝、貯存或使用磁力泵:環境溫度0℃以下、有水飛濺的地方、環境溫度40℃以上的地方、濕度很高的地方(允許濕度35-85%RH)、受塵埃\火災\地震或劇烈衝擊影響的地方。
4、磁力泵不能自吸,使用時必須灌滿液體,空轉會造成零件鎖死或快速磨損。
5、原則上磁力泵不能輸送漿液。但是軸承材質為鋁陶瓷的磁力泵可以在漿液顆粒濃度為5WT%以內、直徑在50um以下、硬度在80Hs以下的條件下使用。
6、當液體的比重和粘度大於清水時,磁力泵的軸功率、輸出流量和揚程將有一定程度的降低。
7、溫度的變化不會影響磁力泵本身的性能。但溫度發生變化時,液體的比重、飽和蒸汽壓力、腐蝕性也隨之發生變化。注意液體溫度的變化所引起的液體化學性質的變化。
8、對磁力泵進行頻繁的啟動\停止將縮短泵的使用壽命。每小時啟停的次數不超過六次。
