簡介
PL單機除塵器是一種體積小、外觀靈巧、除塵效率高的就地排放的除塵機組。除塵器各部件都安裝在一個立式框架內,鋼板殼體,整體除銹後烘漆,外形美觀、結構合理、運行安全可靠、使用簡單方便。主要適用於小密度的非纖維性粉塵的除塵套用,且除塵效率可高達99.9%以上。

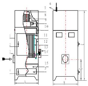
PL單機除塵器構造圖2.除塵濾袋的濾料選用208工業滌綸針刺氈,濾袋結構為扁形袋,每個濾袋內均裝有彈簧骨架,過濾效果好,更換濾袋方便,使用壽命長。
3.除塵器的清灰機構,採用電機帶偏心輪,帶動連桿使濾袋抖動而清除沾在除塵濾袋外表面的粉塵。清灰機構的控制分自控和手控兩種;自控即風機連續工作,振打清灰可按要求自行進行;手控即風機停止後,清灰機構自動工作,數十秒後自動停止。
4.除塵器殼體上安裝有寬敞又密封的檢修門,便於更換濾袋及修理內部部件。
5.集塵器部件採用抽屜式結構,具有操作清灰方便。
6.除塵器一側裝有含塵氣體進風口,可配接拆包口、料灰口、噴砂箱、振動篩、破碎機、斗式提升機和皮帶輸送機等揚塵設備上工作原理及控制
(1) 工作原理:含塵氣體由風機(安裝在箱體上部)抽入箱內(從箱體的中部或下部進入)經布袋過濾,粉塵被阻留在濾袋的表面,淨化後的氣體吸入風機內由出風口排出。濾袋錶面的粉塵隨除塵時增加堆積變厚,濾袋的阻力增加,除塵效率降低,為保證除塵器高效使用,必須清除濾袋錶面堆集的粉塵,PL單機除塵器機內配有自控清灰器進行定時振打清理濾袋錶面的粉塵。
(2)操作控制:將除塵器風機的電機1D、清灰電機2D(J型帶卸灰電機3D),分別接入電控箱,然後接通380V三相四線交流電源,控制迴路為220V,並接入可靠地線。
