簡介
MM440特點
(1)豐富的控制功能。通過P1300參數可以選擇從V/F控制到帶感測器的矢量控制VC等12種不同特點的控制模式,適用於恆轉矩、變轉矩等各種性質負載,滿足各行業的驅動控制要求。
(2)強大的通訊功能。利用Profibus通訊可選件,可以將MM440接入開放的、高速(12Mb/S)的DP網,實現性能更佳、精度更高的通訊控制。
(3)自由功能模組和BICO技術。MM440繼承和吸收了6SE70工程型變頻器的許多優良特點,其中最具實用性的是具有區別一般通用變頻器的自由功能模組和BICO技術,利用豐富的自由功能模組和靈活的BICO技術,可方便地實現各種不同目的的組態設計,完成複雜控制設計的要求;
(4)豐富的停車和制動功能。MM440具有3種停車方式,即按斜坡減速停車(OFF1)、慣性停車(OFF2)快速停車(OFF3)。3種制動功能,即直流制動、複合制動、動力制動(須外接制動電阻,75kW以下已內置制動單元)。停車方式和制動方式的靈活配用,可適應不同機械慣性負載的要求。
套用
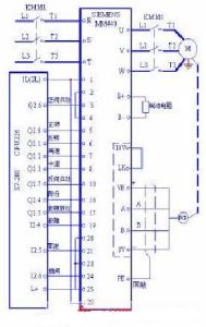
圖1MM440是西門子公司生產的通用型矢量變頻器,它性能穩定質量可靠功能齊全,在電梯行業首次使用MM440在本系統中的套用如圖1。
可程式序控制器PLC和MM440變頻器之間的通訊可有兩種方式一種是串列通訊,採用串列通訊只需一根雙芯禁止電纜西門子專用它大大減少了布線的數量無須重新布線即可更改控制功能可以通過串列接口設定和修改變頻器的參數還可以連續對變頻器的特性進行監視和控制另一種是並行通訊,圖中所示為端子控制端子1_8101617為輸入控制端子19_25為輸出控制端子然後定義每個端子的功能並且通過操縱面板設定其參數如P701=2為上行P702=1為下行P1001=48為正常運行頻率P1002=2為爬行頻率等即PLC通過邏輯分析後發出控制信號如正反轉高速中速點動爬行等信號給變頻器變頻器接受指令並且按照預先設定好的曲線拖動轎廂正常運行另外變頻器還發出信息如零速變頻器是否故障抱閘等信號給PLC使其參加PLC的邏輯運算以保證電梯的安全運行。
調試步驟
通常一台新的MM440變頻器一般需要經過如下三個步驟進行調試:參數復位、快速調試、功能調試。
參數復位,是將變頻器參數恢復到出廠狀態下的默認值的操作。一般在變頻器出廠和參數出現混亂的時候進行此操作。
快速調試狀態,需要用戶輸入電機相關的參數和一些基本驅動控制參數,使變頻器可以良好的驅動電機運轉。一般在復位操作後,或者更換電機後需要進行此操作。
功能調試,指用戶按照具體生產工藝的需要進行的設定操作。這一部分的調試工作比較複雜,常常需要在現場多次調試。
參數設定
MM4401恢復變頻器工廠默認值
P0010=30工廠的設定值
P0970=1參數復位
2設定電動機的參數
P0003=1設用戶訪問級為標準級
P0010=1快速調試
P0100=0功率以KW表示頻率為50Hz
P0304=380電動機額定電壓V
P0305=2.6電動機額定電流A
P0307=0.9 電動機額定功率KW
P0310=50 電動機額定頻率HZ
P0311=1420電動機額定轉速r/min
P0010=0變頻器處於準備狀態
3面板基本操作參數
P0003=1設用戶訪問級為標準級
P0004=7命令和數字I/0
P0700=1由鍵盤輸入設定值選擇命令源
P0003=1設用戶訪問級為標準級
P0004=10設定值通道和斜坡函式發生器
P1000=1由鍵盤電動電位計輸入設定值
P1080=0電動機運行的最低頻率Hz
P1082=50電動機運行的最高頻率Hz
P0003=2設用戶訪問級為擴展級
P0004=10設定值通道和斜坡函式發生器
P1040=20設定鍵盤控制的頻率值
P1058=10正向點動頻率Hz
P1059=10反向點動頻率Hz
P1060=5斜坡上升時間s
P1061=5斜坡下降時間s

