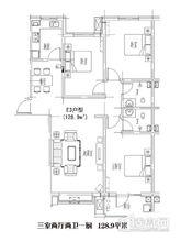
麗亞花園戶型圖
麗亞花園戶型圖交通路線
麗亞花園交通地圖樓盤地址:趙縣石塔路與升華街交口東南
公交路線:縣城流動公交、往返石家莊到縣城東向村鎮的臨時停車點

麗亞花園西臨升華街、北臨石塔路、南臨雲台路,交通便利。17層和29層板式高層錯落有致。超大樓間距、充足停車位以及小區完善配套盡顯精緻。戶型90到135平米。
麗亞花園戶型圖
麗亞花園交通地圖樓盤地址:趙縣石塔路與升華街交口東南
公交路線:縣城流動公交、往返石家莊到縣城東向村鎮的臨時停車點
亞哥花園位於台中市東郊大坑口風景區內寧園巷41號,占地6公頃。園內設計新穎,設備完善,種植了81種草花植物,四季皆有花開,由高處俯望,繁花似錦,綠地如毯...
亞哥花園 簡介 設施 特色景觀 相關信息,在女友勞麗嫦支持下,提早結婚,攜手搭建新家,讓一對小兄妹重拾父母之愛...的挑戰,公私兩忙。父子倆相見好,同住難,常要出動麗嫦這個賢媳調停,舒緩緊張氣氛。皆因馬虎敬重麗嫦當日花樣年華委身下嫁馬強,撫養一對沒有血緣子女...
劇情簡介 角色介紹 職員表 演員表 分集劇情打擊不辭而別,遺下一對小孤雛子仁與子妮,幸得馬強弟承兄責,在女友勞麗嫦...。父子倆相見好,同住難,常要出動麗嫦這個賢媳調停,舒緩緊張氣氛。皆因馬虎敬重麗嫦當日花樣年華委身下嫁馬強,撫養一對沒有血緣子女,更悉心照料患病...
劇情簡介 角色介紹 職員表 演員表 分集劇情,在女友勞麗嫦支持下,提早結婚,攜手搭建新家,讓一對小兄妹重拾父母之愛...的挑戰,公私兩忙。父子倆相見好,同住難,常要出動麗嫦這個賢媳調停,舒緩緊張氣氛。皆因馬虎敬重麗嫦當日花樣年華委身下嫁馬強,撫養一對沒有血緣子女...
劇情簡介 角色介紹 職員表 演員表 分集劇情澳麗花園是高品質小區,周邊生活配套設施齊全,近沃爾瑪,易初蓮花大賣場,門口巴黎春天,仁濟醫院,兒童醫學中心,小區很安靜,物業精良。
小區描述 小區詳情 周邊配套 小區相冊維納陽光坐落於閔行區北松公路838弄,由上海合裕房地產有限公司開發,上海同濟建築設計院設計,總占地面積161595平米,為純別墅社區。小區內部有阿波羅廣...
百科概述 小區信息 詳細信息 周邊配套海麗花園是由上海(中海集團)海麗房地產有限公司開發的普通公寓。
小區信息 周邊配套小區為學區房可以上明強國小,共分一到三期組成,周邊國小,中學及幼稚園,閔行體育公園;小區配有涼亭,水池,網球場。老年活動室,健身場及幼稚園等設施齊全,配...
百科概述 小區信息 周邊配套香榭麗花園坐落在浦東世紀大道旁的香榭麗花園,其高貴的品質任所有購房者為之欣喜。從設計到施工的每一個環節,都體現發展商“源自細節”的關懷,其獨到的設計手法...
小區詳情 周邊配套 房價走勢