原理
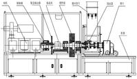
電慣量模擬制動器慣性試驗台由制動器試驗台台體、工業控制計算機測控D AC(Data Acquisition & Controlling)系統、直流調速電力拖動系統、電氣控制與測試系統、液壓制動伺服控制(Servo Control)系統、冷卻和除塵系統六部分組成。
制動器性能檢測時, 將制動器安裝在試驗台上, 直流電機驅動主軸鏇轉。當轉速達到模擬轉速時, 制動鉗工作,通過制動鉗與磨擦盤之間的摩擦力,使制動器產生制動力矩, 迫使主軸停止轉動, 在制動過程中測量制動力矩、制動減速度等參數。轉動慣量由電慣量系統利用固定小飛輪和計算機控制電機進行聯合模擬,即利用固定小飛輪模擬部分慣性能(主要用於補償電機在低速時的控制性能),利用計算機控制電機模擬其餘部分慣性能(在整個制動試驗期間,飛輪軸與電機軸不脫開)。
電慣量系統是制動器試驗台測量控制系統的核心環節,該系統中運用的電慣量技術以電機模擬機械轉動慣量,該技術的實現對制動器試驗台將產生下列影響:
(1)縮小試驗台的結構尺寸,減輕其重量;
(2)實現對模擬負載慣量進行無級調節;
(3)大大完善了系統功能,提高了設備的載入精度和自動化程度;
(4)電慣量系統的理論基礎與控制方法,對具有大轉動慣量的各類試驗系統的控制方法研究和系統設計均有借鑑作用,如汽車台架試驗系統、同步器試驗台、車輛轉鼓試驗台等。
(5)採用電慣量模擬機械慣量,只使用一個基礎慣量補償低速段的速度控制特性,可以進行慣量連續的模擬試驗;機械操作方便,避免慣量輪人工裝配的煩瑣,操作簡單,使用和維護方便。
速度檢測採用OMRON編碼器,速度檢測準確;套用Z4系列西門子技術直流電機,調速器採用英國歐陸公司590+四象限調速器,速度穩定,速度增減變化快,可以實現快速的增減速度,實現慣量的準確模擬。
壓力控制採用德國FESTO氣動比例閥,調整氣路壓力,通過1:20增壓缸轉換為制動液制動,增壓、卸壓速度快,可以實現線性快速增卸壓。
通過美國進口扭拒感測器檢測摩擦力,結構簡單,精度高,質量穩定。
試驗對象
載重量3.5噸及以下輕型車、微型車、轎車盤式 / 鼓式制動器總成或制動片。
基本功能
1). 具有慣性台架的全部功能;
2). 具有KRAUSS、LINKING試驗機的全部試驗功能;
3). 具有恆力矩(恆輸出)試驗功能;
4). 具有恆壓力(恆輸入)試驗功能;
5). 具有靜力矩試驗功能(選擇項目);
6). 具有手剎車試驗功能(選擇項目);
7). 全面計算機控制,檢測,列印曲線及報告;
8). 軟體充分可編, 可執行中國,歐洲,美國,日本等試驗標準。
可執行代表性標準
P-VW3211,P-VW3212,VW-TL110,SAE J212, JB 3980, JB 4200, JASO C406,ISO 11157,AK Master,AK1,AK2
主要技術參數
電機功率: (直流)165 KW,電樞電流395A; 1500/2400 r/min;
主軸轉速: 30~2400 r/min;
許用力矩: 慣性制動 (max) 5,000 N.m;連續拖摩 840 N.m
靜 力 矩: (max) 2,500 N.m
手 剎 車: 拉力 0~3,500 N, 行程 50 mm ;
滑台部分: 制動盤/鼓直徑 < F400 mm, 寬度 < 500 mm;
最大軸向載入 5000 N,最大徑向載入 40000 N;
制動壓力: 氣液增壓—恆壓或恆力矩 1~180 bar
壓力梯度: (max) 1200 bar/sec
溫度測量: 室溫~ 800 ℃
冷卻系統: 鼓風量: 2400 m3/h(在風速30 m/s時) (可模擬設定),
引風量: 2800 m3/h;
調速裝置: (型號歐陸590+四象限) 440V; 500A
計算機系統: DELL P4 3.06G,512M記憶體,17“彩顯,80G硬碟,3.5”軟
16X DVD光碟機
彩色印表機:HP(A4)
外形尺寸:
主 機: 4500×1250×2200 (mm), 重量:約 12,000 kg;
調速櫃: 600×800×2200 (mm), 重量:約 600 kg;
控制櫃: 600×600×1600 (mm), 重量:約 200 kg;

