電動臥卷夾鉗概述

電動臥卷夾鉗的分類
根據傳動方式的不同可分為兩類:①齒輪齒條式電動臥卷夾鉗 ②三絲槓式電動臥卷夾鉗
齒輪齒條式電動臥卷夾鉗
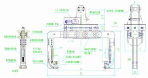
齒輪齒條式電動臥卷夾鉗由吊架、平移驅動裝置、鉗臂、電氣及控制系統、液壓潤滑系統、電纜卷升裝置等組成,採用驅動電動機,通過一組齒輪齒條傳動機構來實現鉗腿的開閉動作,基動作由起重操作人員直接控制。具有重量輕、操作簡單、動作靈活可靠、轉運安全方便、作業效率高等特點,主要用於鋼鐵廠、港口、碼頭等單位大批量臥式卷狀物體的轉運。
特點:1、額定載荷8~30T,電器控制採用PLC控制。
2、吊具的驅動為制動電機,通過力矩限制器、帶傳動、減速器、齒輪齒條傳動來實現夾鉗的開合。
3、光電檢測對心。在夾鉗一側鉗腿有兩個光電發射器,另一端有兩個接受器,當光電接受器接受到另一側發出的光源時,即可夾緊。
4、當吊鉗的兩側接近卷板尚有25mm距離時,光電限位器動作,夾鉗兩個限位都動作後,電機停止並制動。
5、夾鉗的操縱位置在駕駛室內(或在行車搖空器上)。
6、吊具的最大和最小位移有機械和電器雙重限位。
7、偶然有夾鉗鉤對中卷板壁夾緊的情況,加緊後力矩限制器仍起保護作用,保證夾鉗和卷板不會受傷。
8、吊具吊起後,如有誤操作,例如按了電器的打開按扭,這時鉗口承重開關起作用,確保作業安全。
9、夾鉗速度:單側4.5米/分鐘,雙側9米/分鐘。
10、夾鉗的潤滑採用手動泵集中潤滑,每班注油1~2次。
三絲槓式電動臥卷夾鉗
三絲槓是電動臥卷夾鉗1、此夾鉗採用三絲槓式傳動,可方便的進行臥卷的吊運。
2、動作平穩自如,作業安全、可靠。有完善的檢測裝置(自動對心、邊部檢測防撞、安全保護裝置、防止誤操作功能),並設定各狀態指示燈。在荷載及失電後有機械鎖定裝置。在故障時有手動開、閉功能。
3、採用plc電氣控制,可在遙控或司機室操作。電氣連線採用多芯插頭、插座固定在吊鉤端子箱,電氣箱易拆卸、維護,電纜採用端子連線,布線整齊,有標號。
4、全部採用優質低合金結構鋼製造,焊縫採用無損探傷。
5、結構件噴丸,醇酸磁漆面漆,各項標識明確。
