國家標準
防水國家頒布的《住宅設計規範》(GB50096-2011)規定:地下室、半地下室應採取防水、防潮及通風措施,採光井應採取排水措施。住宅的屋面、地面、外牆、外窗應能防止雨水和冰雪融化水侵入室內。
地下室防水工程技術及驗收規範:《地下室防水工程技術規範》GB 50108-2008,《地下室防水工程質量驗收規範》GB 50208-2011
屋面工程技術及驗收規範:《屋面工程技術規範》GB 50345-2012,《屋面工程質量驗收規範》GB 50207-2012
住宅室內防水工程技術規程:《住宅室內防水工程技術規程》
防水套用
一、工程方面的防水主要是指防明水,可以看得見的流水。少量是為了保護建築物免受水汽,水分的侵蝕而做的防水。這方面的材料主要有卷材,聚氨酯等等。施工要求高,工藝複雜。
二、家裝方面的防水是指和家庭生活相關的防水常識、防水材料和防水技術的統稱。包括但不限於屋面、衛生間、陽台、外牆、廚房、地下室、游泳池的防水等位置的防水防潮處理。這個細分領域正在初步成型,施工要求相對較低,大眾化,實用。
防水篷蓋布
中國不少企業在“七五”、“八五”期間先後從日本、德國、義大利和中國台灣省引進先進設備生產PVC塗層滌綸織物或PVC層壓滌綸織物,開發出新型篷蓋布材料。根據套用部門要求,他們生產的產品各具功能性,作新一代遮陽篷材料、篷體柔性燈箱廣告材料、充氣結構材料、導風筒材料、廂式貨車篷面材料、集裝袋材料等,新型篷蓋布材料的產品種類大大增加,技術性能和質量也有了明顯的提高,不僅滿足了國內不少用戶的需要,而且也打入到國際市場。
2011年中國防水篷蓋布產業主要集中在華東地區,資產總計約占全國總資產的79.95%,主營業務收入約占全國總收入的79.26%,利潤總額約占全國總數的73.52%。其次是,華北和中南地區產業相對集中,而其在他地區該產業分布的較少。
家裝防水
防水家庭防水是一個全新的概念,是由家庭裝修引伸出來的一個概念!防水材料是家裝工程的基礎材料,防水做不好,基礎不窂,在其上的裝修材料會引發許多問題,並且會對室內環境產生污染。
就家庭而言,防水主要包括廚房、衛生間、陽台、露台及容易受潮牆面等範圍。防水不當所導致的滲漏、發霉等問題將嚴重影響生活,很多家庭都深受其害。隨著人們生活水平和居住品質的不斷提升,家庭防水愈來愈為人們所重視。而防水材料品類多樣,施工技術參差不齊,防水材料和防水工藝的選擇仍是許多家庭的一大難題。
從市場的主流防水材料來看,防水卷材因其施工技術要求高,主要適用於屋面工程,不宜家庭小面積防水施工;911聚氨酯防水塗料因其散發揮發性毒氣、要求施工基面乾燥、面層跟瓷磚不粘結等缺陷而難被家庭所接受;而JS水泥基防水塗料是由有機高分子液料和無機粉料複合而成,融合了有機材料彈性高和無機材料耐久性好的優點,塗復後形成高強堅韌的防水塗膜,具有防水性能好、耐老化、抗龜裂等優勢,綠色環保,施工方便,正逐步成為家庭防水的理想選擇。
家裝為什麼要做防水
新房裝修.必然要進行水電改造勢必破壞原開發商做的防水層.為了加強防水設定保護財產安全避免鄰里糾紛所以新房裝修必須做防水。同時家庭的防水還能夠以延長房屋的使用年限,避免漏水而導致的房屋牆體裝修層的剝落。
防水分類
工程防水顧名思義就是工地建設引伸出來的一個概念!防水材料是工程防水的基礎材料,防水不做好,地下室滲漏,後期維修很麻煩。
工程防水主要包括地下室底板、側牆、廚衛間、露台、屋面、游泳水池等。
窗體
窗體防水機構圖滲水原因
一、造成窗框周邊漫滲,有如下原因:
1.結構形變,密封材料脫落。
2.窗框周邊有細小裂縫。
3.窗框周邊有空穴存在。
4.安裝誤差大。
窗體防水治理方法
⑴清理窗框周邊,查找滲漏縫隙,分析滲漏原因;
⑵對於牆體內部存在空穴的部位,根據具體情況考慮化學灌漿或填充其它
彈性防水材料。
⑶清理縫隙表面,其表面不應有油污,浮塵等隔離物;
⑷在窗框周邊縫隙內嵌填彈性密封材料;
⑸試水檢驗防水效果。
衛生間
滲水原因
一、結構施工
1.混凝土的水灰砂石等的配比不正確,引起板、梁裂縫。
2.混凝土澆築時混凝土已過初凝時間。
3.澆築中斷時間過長,形成施工冷縫。
4.澆築時振搗不夠或超振,形成混凝土內有毛細孔隙。
5.澆混凝土時(一般衛生間採取降板300)時,梁板同時澆築,在梁下部(板的上面)出現懸空洞。
7.支撐衛生間的梁側模板的支撐木條在澆築時未即時除掉,留在板中,形成孔洞。
8.馬蹬直接放在板底模上,再加上上部鋼筋露出板面,鋼筋發生鏽蝕,形成水路而出現滲漏。
9.由於是降板,工人下料經常下錯使得鋼筋放不下,於是強行彎曲下放,造成降板中梁側根部形成無筋長帶,從而易發生板小裂縫口。
10.模板拆的過早,養護不及時或不夠,板形成裂縫。
二、建築施工
11.找平層施工前未清理乾淨。
12.找平層過厚,出現裂縫。
13.找平層未找坡或找坡不夠,形成積水。
14.防水層未完全封閉,由於材料質量不合格或施工質量不好,有孔洞和縫隙。
15.防水層施工前未做圓角。
16.底板防水層上翻高度不夠,按規範為上翻為150mm,而要達到好的防水效果應至少上翻1000-1200mm才行。
17.牆面防水未做或施工質量不合格
三、給排水施工及其他
18.牆上水管電線套管的埋設溝槽未填塞好,使水可沿著管外壁滲漏。
19.穿牆、板管未加套管,或在套管與管之間未打膠封嚴。
20.套管高度不夠或套客預留洞沒堵好或所用封堵材料不合格。
21.管根部防水做法不正確、不到位。
22.水管破裂
23.接頭不嚴,彎頭、三通、龍頭、堵頭等質量不合格。
24.牆面出現裂縫。
施工方案
1.原料:JE-I防水膠
2.施工步驟
1.先將水泥和沙攪拌均勻,然後加入 JE-Ⅰ和水。
2.按"JE-Ⅰ∶水泥粉∶砂∶水 = 1∶6∶13∶水適量(約2)"攪拌成防水砂漿,注意攪拌要均勻。
3.將防水砂漿批盪至施工面,厚度為 1、5cm以上。(註:工程不同部位的厚度要求請參考"合豐JE超高分子聚合物材料防水施工圖"。)
4.使用普矽32、5以上合格水泥,砂為中細砂,含泥量小於3%。
5.一次配量不宜過多,攪拌好的材料應在45分鐘內用完。攪拌必須均勻。
6.施工後作適當養護,24小時後可作閉水試驗,48小時後不滲漏即為合格,可交付使用。
7.結構防水混凝土中的摻量是水泥重量的5%。
8.施工溫度為5℃以上。
施工原料:JE-Ⅱ聚合物防水砂漿
施工方案:
1.清理好施工面,並用清水掃至微濕。
2.將產品的雙組份混合攪拌均勻備用,請勿加水。
3.用“批匙”或“刷子”均勻地將膠漿塗刷於處理好的施工面上。
4.必須塗刷兩層以上,每次施工間隔要等上次乾後(不粘手)才做第二次,平均厚度達到2mm即可。
要點介紹
正值裝修旺季,據業內人士介紹,衛生間的防水工程是家庭裝修比較容易出現問題的地方,要格外關注這些家裝中的“敏感區域”。用於衛生間防水的材料有很多種,基本上防水效果都不錯,但要注意具體的施工細節。
防水做平地面如果您要更換衛生間的地磚,在將原有地磚鑿去之後,先用水泥砂漿將地面做平,然後再做防水處理。這樣可以避免防水塗料因薄厚不均而造成滲漏。衛生間牆地面之間的接縫以及上下水管道與地面的接縫處,是最容易出現問題的地方。在施工中,接縫處應塗刷到位。
處理牆面在對一般的衛生間防水處理中,牆面上也塗上大約3 mm 厚的防水塗料,以防積水洇透牆面。如果使用兩扇式的沐浴屏,相連的兩面牆也要塗滿。如果您家使用浴缸,與浴缸相鄰的牆面,防水塗料的高度也要比浴缸上沿高出一些。建築漏水,說明是防水層破裂或者有空隙,傳統的方法就是修補防水層。
修補防水層的施工步驟一般分為:撬開瓷磚、挖走建築防水層,重新製作新的防水層,再重新鋪設瓷磚。整個施工過程需要再一周左右,一個普通的衛生間耗費在1500-2000元。
防水層的外面還有一層裝飾用的瓷磚,如果防水層破裂,讓瓷磚充當防水層的方法是最新的防水理念,因為修補防水層的施工工程大,耗費高,用時長,所以在瓷磚表層做防水是很有必要的,現在市面最新出現一種CPC防漏劑,可以有效做到衛生間的防水工作。
具體施工補漏
步驟一、勾縫
即把瓷磚與瓷磚之間的縫隙或瓷磚與牆之間縫隙的鬆動部分去除,使用工具為美工刀片或專業刮刀。
注意事項:
1.凡是以前塗過矽膠的地方一律要把矽膠去除。
2.拐角或管道接口的地方,一定要重點檢查,看是否有鬆動或變軟的部分,儘量去除鬆動或變軟的部分,對於特別堅硬的部分可以保留。
步驟二、填縫
把去除的縫隙部位用填縫劑填滿。
填縫劑的製作:
用白水泥或普通水泥加水調成糊狀即可(調成糊狀,流動性不能太大,因此水不能太多)。如果條件允許的話,調成糊狀後加一點防漏劑效果更佳。
注意事項:
1.對於長期有積水或不乾燥的地方,完成第一步勾縫後,對準縫隙等潮濕部位用乾燥燈烘烤一段時間,直到乾燥為止。
2.在烘烤乾燥後,如果能對準縫隙等部位加少量防漏劑再把縫填上,即可達到最佳效果。
3.填完縫後,用一塊乾布擦去瓷磚上多餘的填縫劑。
步驟三、塗刷防漏劑二次
注意事項:
1.完成第二步填縫工作後,填縫劑不會馬上乾燥,至少8小時後才達到乾燥的效果,所以建議第二天再塗刷防漏劑。為了節省時間,建議第
成都金屬屋面防水2.塗刷防漏劑第一遍後五分鐘左右後再塗第二遍,塗刷所有部位,浴室的淋浴房要塗刷到1.8米高,必要時縫隙部位要多塗幾遍,讓防漏劑充分滲透並吸收。
防水實驗在衛生間施工完畢後,將衛生間的所有下水道堵住,並在門口砌一道25 cm 厚的“檻”,然後在衛生間灌入20cm高的水。在24小時後,您再檢查四周牆面和地面有無明顯的滲漏現象。
金屬屋面普遍存在漏水現象:經過市場調研,目前我國大部分鋼結構彩板屋面漏水現象較為嚴重,在南方
區域該現象更為突出,甚至有的鋼結構廠家自身廠房、辦公室發生漏水的現象也屢見不鮮,漏水主要集中在垂直搭接、水平搭接、屋脊兩邊搭接、採光瓦四周、風機四周、煙囪管道四周、屋面所有螺釘、水槽、女兒牆接縫處等接縫部位。
外牆
一、牆體檢查與處理
1.外牆砌築要求:砌築時避免牆體重縫、透光,砂漿灰縫應均勻,牆體與樑柱交接面,應清理乾淨垃圾余漿,磚砌體應濕潤,砌築牆體不可一次到頂,應分二至三次砌完,以防砂漿收縮,使牆體充分沉實,另注意牆體平整度檢測,以防下道工序批灰過厚或過薄。
2.牆體孔洞檢查及處理:批灰前應檢查牆體孔洞,封堵如牆身的各種孔洞,不平整處用1:3水泥砂漿找平,如遇太厚處,應分層找平,或掛鋼筋網,粘結布等批灰,另對腳手架、塔吊、施工電梯的拉結桿等在外牆留下的洞口應清潔潤,用素水泥漿掃漿充分,再用乾硬性砼分2次各半封堵,先內後外,充分搗固密實,水落管卡子鑽孔向下傾斜3°-5°,卡釘套膨脹膠管刷環氧樹脂嵌入,嚴禁使用木楔。混凝土剪力牆上的螺桿孔應四周鑿成喇叭口,用膨脹水泥砂漿塞滿,再用聚合物防水漿封口,封堵嚴密。
3.砼外牆修補砼外牆局部出現少量漲模、蜂窩麻面現象,根據實際情況採取如下方法對砼表面進行修補:①漲模修補,首先將不符設計和規範要求的凸出砼部分鑿除,並清理乾淨,其次用鋼絲刷或加壓
水洗刷基層,然後用1:2或1:2.5水泥砂漿找平,最後灑水養護十四天。②蜂窩修補(所有發現的蜂窩麻面均面積較小無深孔現象),首先對砼面上的鬆動的石子、砼屑鑿去,並清理乾淨。其次在修補前應先澆水沖洗待修補的砼面上的灰塵,保持修補基面的濕潤,然後用1:2或1:2.5的水砂漿找平,最後灑水養護十四天。
二、確保找平層的施工質量
1.找平層抹灰前的工作:
應注意砌體批灰前表面的濕潤,噴灑水充分,砌體部分與混凝土部分交接處的外牆面在抹灰前要用200㎜寬16#鋼絲網片復蓋並加以固定,以抵抗因不同材料的膨脹係數不同而引起的開裂。對混凝土牆面的浮漿、殘留的模板木屑,露出的鋼筋、鐵絲一定要清理乾淨,以利抹灰砂漿與基層粘結牢固。
2.找平層抹灰時應注意:⑴砂漿應嚴格按配比進行,嚴格計量,控制水灰比,嚴禁施工過程中隨意摻水;⑵對抹灰砂漿應分層抹灰,尤其是高層建築,局部外牆抹灰較厚,這就需要進行分層批灰,每層抹灰厚度不應超過2㎝,如厚度過大,在分層處應設鋼絲網;⑶批灰砂漿可用聚合物防水砂漿;⑷外牆抹灰腳手架拉接筋等,應切割後,喇叭口抹實壓平,定漿後,可用鐵抹子切成反搓,然後再刷一道素水泥漿。
三、確保外牆面磚的施工質量
1.鑲貼面磚前應先檢查找平層有無空鼓、起殼、裂縫和不平整,如有應即時修補合格,然後用純水泥漿(摻10%107 膠)在找平層上滿刷一遍並進行拉毛處理。
2.面磚應符合產品質量要求,鑲貼前應對面磚顏色均勻否,平整翹角邊否進行精選,面磚應提前1至2小時候浸入水池,用時晾乾表面浮水。
3.面磚可用1:1水坭細砂漿鑲貼,鑲貼時先在面磚背面刮一層7㎜厚摻107膠薄漿,以彌補不平和增強粘結力,面磚鑲貼時應壓緊搓擠到位,擠漿使窄縫飽滿,余漿及時清除。
4.面磚貼上完畢後及時勾縫,勾縫宜用1:1聚合物防水砂漿,以減弱水泥砂漿的脆性,一般縫道設定寬度約為8㎜,勾縫順序須水平和垂直縫同時進行,防止出現過多頭,縫的形式為凹縫,略低於面磚2至3 mm。勾縫完畢後,進行檢查無漏勾或其它疵病後,用棉絲將面磚表面揩擦乾淨。最後進行灑水養護若干天。
5.為防止面磚及粘結層開裂造成牆面滲漏,可在每層樓板邊樑上、下留設2道水平分格縫,使面磚粘結層分離。分格縫應清理乾淨並在拆除外腳手架前填入耐候膠,膠面與瓷磚面平。陰角部位也採用耐候膠封閉。
四、確保門窗施工質量
在進行門窗安裝前需對門窗洞尺寸進行檢查,對尺寸偏差較大的要進行處理,以免因窗框周邊縫過大或過小影響塞縫質量,一般要求框邊與洞口間縫寬約20㎜。安裝必須按規範,橫平豎直,進行固定,並做好隱蔽工程驗收。窗框固定好後,經用聚合物防水砂漿對窗框周邊進行塞縫,塞縫前先刷一道水泥防水砂漿以利於砂漿粘結,塞縫要壓實、飽滿,絕不能有透光現象出現,檢查確認塞縫質量後方可繼續進行窗框周邊抹灰施工。水泥砂漿粉飾的窗套天盤必須做好滴水線。水泥砂漿括糙後面磚貼面的天盤外口必須比里口低。門窗安裝、粉飾成型後,要進行產品保護,門窗不能被破壞。
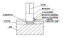
五、確保屋面施工質量
屋面與外牆面聯繫緊密,屋面節點設計和施工至關重要。《屋面工程技術規範》及《屋面工程質量驗收規範》GB50207-2002明確要求應做好一頭(防水層的收頭),二縫(變形縫,分格縫
),三口(水落口、出入口、檐口)和四根(女兒牆根、設備根、管道根、煙囪根)等泛水部位的細部構造處理。對於解決屋面節點滲漏水問題,從設計上,要求設計人員對這些部位強化處理,詳細出圖。充分考慮結構變形、溫差變形、乾縮變形、振動等影響,採用節點密封、防排結合、剛柔互補、多道設防等做法滿足基層變形的需要。從施工上,施工前應制定屋面防水施工專項方案,對施工人員要詳細交底,讓他們對操作要點做到心中有數,以確保節點防水的可靠性。
六、外牆滲漏檢驗措施
採用連續淋水法,可用φ20㎜的水管,採用3kpa壓力水,在建築物頂層連續淋水6h,觀察內牆面和窗邊四周有無滲水痕跡。
一般平屋頂的防水方式有:
1.卷材防水
2.塗膜防水
3.剛性防水
地下室
簡介
防水地下室施工的順序地下室連在一起的內外牆必須一起澆築,
外牆自防水砼,全部採用二次振搗工藝。具體施工工藝及操作辦法詳見地下室施工方案內相關章節內容。
地下室防水施工處理
①牆面水平施工縫加止水條的形式防止滲水。
②新舊砼的接縫處理。砼澆筑前24小時,施工縫用高壓清水沖洗,並多次濕潤砼接槎面,使新舊砼有良好的接槎。
管道穿牆部位防水施工
穿牆管應在澆築砼前預埋套管,穿牆管與內牆角,凹凸部位距離應大於250㎜,管於管的間距應大於300㎜當穿牆管線較多時,可採用穿牆盒的封口鋼板與牆上預埋角鋼焊嚴,並從鋼板上的預留澆築孔注入改性瀝青柔性密封材料或細石砼。
地下室防水施工工藝
地下室防水施工本工程地下室底板,地下室外牆防水層兩道。採用2㎜厚聚氨脂防水塗料,卷材採用三元乙丙橡膠防水卷材1.5㎜厚。
1.地下防水工程的防水層,均應在地基及結構驗收合格後施工。
2. 地下室底板防水工程施工期間,地下水位應降至防水工程底部最低標高以下,不小於300㎜,直至防水工程全部完成為止。
3. 聚氨脂防水塗料施工、工藝及方法
屋頂漏水的解決辦法
家庭防水寶典第八回之漏水先別急,專家來支招講到:房屋出現滲漏,首先應查明漏水的原因,一般來說屋頂滲漏常見以下幾個問題:防水層質量問題引發開裂、防水層老化而引發開裂、人為破壞防水層、或是結構裂縫等;第二步,選擇處理辦法,常見的處理方法有:在原有防水層上進行修補、整體做防水等;第三步、謹慎處理免後患,提醒業主應該選用品牌的防水材料,施工時一定要細緻、全面,切不可有僥倖心理,以防止再次漏水。
針對常見的房頂漏水,雷邦仕建議您做以下幾個具體步驟:
首先,應找到漏水點。
如果漏水點裂縫不算長,且不算深,長度不超過5-6cm,深度不深過2-3cm,可用雷邦仕管口灌漿料導入填充。雷邦仕管口灌漿料是由高強度礦物質為骨料,以水泥作結合劑,輔以高流態、微膨脹、防離析的添加劑配製而成的水泥基單組份粉狀灌漿材料,在施工時加入水攪拌後即可使用,具有自流性好、高強度、無收縮、快速凝固等特點,能迅速填補縫隙,解決管口、機腳等各類錨固難題,是雷邦仕公司最新研發的專利產品。
其次,用柔韌型防水漿料塗刷。
管口灌漿料填充密實後,用柔韌型防水漿料進行塗刷,雷邦仕柔韌型防水漿料具有“剛柔並濟”的特性,既有聚合物塗膜的延伸性、防水性,也有水硬性膠凝材料強度高、耐水性好、易與潮濕基層粘結的優點。而且柔韌性佳,能抵禦建築結構輕微的震動以及一定程度的位移;
第三,使用無紡布降低防水層受結構運動作用。
加一條泡過柔韌型防水漿料的無紡布在裂縫處。
第四,做水泥砂漿保護層。
用水泥砂漿在乾固後的防水層上塗刷做保護層。
需要提醒的是如果做好後的防水又再度在同樣位置開裂,且裂縫超過0.4mm,屬房屋結構問題,與防水無關;如果找不到漏水點,則建議整個屋面整體重新進行防水處理。
以上施工資料由雷邦仕,專業家庭防水專家,提供!
防水塗料施工工藝
施工順序:基層處理 塗刷底層塗料 塗布第一道塗膜防水層 塗布面塗膜防水層 質量檢查驗收合格 進行下道工序卷材施工。
施工前應檢查,基層要堅實具有一定強度,表面無浮土砂粒等污染物。基層應乾燥,含水率應少於9%為宜。
塗布順序應先垂直面,後水平面,先陰陽角及細部後大面每層塗布方向應順直。
三元乙丙施工工藝
在防水塗料施工完成最好一道塗膜固化乾燥後,方可進行卷材施工。特彆強調是防水卷材直接在防水塗料層施工,其粘接材料必須是卷材與防水塗料之間相容、配套的專用粘接劑,膠粘帶、密封材料等進行卷材接縫的處理,膠粘劑的剝離強度浸水168h後,其保持率應大於70%,否則不允許採用。
A、三元乙丙防水卷材施工工藝
複雜部位增強處理 樁頭防水處理 塗布基層專用粘接劑 鋪設三元乙丙卷材 卷材接縫及收頭處理 防水保護層。
B、樁頭防水處理:
樁頭鋼筋用止水帶密封,樁伸入承台為50㎜,樁頭防水作法按陝02J10頁24節點①施工,樁頂及樁外150㎜一圈做2㎜厚防水塗料,樁頂及樁外300㎜一圈用防水砂漿壓實抹光,卷材與樁一周接縫處用聚氨脂封閉嚴實。
卷材鋪貼方法
⑴、卷材及基層塗膠基本乾燥後(手觸不粘一般15~20min即可鋪貼,此為滿鋪粘法搭接寬度100㎜,接茬錯開250㎜。
⑵、鋪貼前,必須彈線(拉線)控制,地下室底板各樁間要提前計算好卷材尺寸,保證鋪貼嚴實。並每隔1米對準標準線將卷材粘接一下,每鋪完一張卷材立即用乾淨而鬆軟的長把塗刷用力滾壓一遍,以排除粘接層之間的空氣。排除空氣後,用壓輥沿粘接面用力滾壓。
卷材搭接接縫及收頭必須以專用的接縫膠粘劑及密封膏進行處理。
卷材防水層經檢查質量合格後,即可做保護層,保護層採用C20細石砼,厚度50㎜,澆築細石砼時不得損壞防水卷材層。
材料介紹
常用材料
一、JS複合防水塗料
⑴適用於各種水塔、水池、水箱、水坑、水閘的防滲、防漏、防水、防腐,是國內首創的既能防水又能防腐蝕的兩棲產品,自來水、飲用水池均可使用(具有無毒檢測報告),塗層後的JS複合防水塗料長期浸泡水裡壽命達30年以上。
⑵各種污水池防水均可用JS複合防水塗料塗刷一布三塗或二布五塗,施工方便、美觀耐磨。
⑶適用各種冷卻塔、涼水塔的防水防腐蝕而且也可以起到防凍的作用,使用溫度可達-150°C。在室外工程還配套特強型抗紫外光線的PHA罩面漆。
⑷由於其防水效果個防水的環保性,JS複合防水塗料也可以用於家庭防水,比如雷邦仕JS柔韌型防水砂漿就是專門針對家庭防水而生產的產品。
1.PHA106—專用防腐塗料:
⑴適用於地下管道的防腐蝕。
⑵適用化工廠、印染廠、化纖廠、電廠、鹽庫的地坪、車間、天棚、車間牆壁防腐蝕。
⑶酸池、鹼池、化肥廠的造料塔、倉庫的防腐蝕。
⑷食品廠、酒廠、釀造廠的各種防腐蝕(無毒、有國家級衛生無毒報告)
2.PHA107—地坪裝飾防腐專用村料:
⑴適用機械、電子、輕工紡織、汽車、製藥、食品等行業大型工業廠房地坪、牆面裝飾防潮、防霉、防腐耐磨。
⑵適用於各種木製品的防潮、防霉、防腐、裝飾。
⑶適用於捲菸廠、糧食倉庫、金庫的防潮、防霉、防水、防腐。美翎塗料PHA系列,在水泥混凝土表面塗刷,每平方米用量為0.4公斤,鋼結構表面每平方米約為0.3公斤,重要部位可以採用一布三塗,二布五塗(一布三塗每平方米用量為1公斤,二布五塗為1.5公斤左右)。
二、耐高溫塗料PC型:
適用於煙囪、煙道、火炬、高溫設備等(400°C以上)每平方米用量0.5 公斤,塗刷四道。
三、PD型特種防腐塗料(氯磺化聚乙烯型):
1.PD113氯磺化聚乙烯型防腐塗料,刷塗五道,二底二面,每平方米用量1公斤。
2.PD114帶銹防腐塗料 PD115抗裂性、抗紫外光線防腐塗料 PD116管道防腐塗料 PD117煤氣櫃專用防腐塗料 二底三面,每平方米用量為1公斤。適用於室內外各種鋼結構、管道、煤氣櫃、油灌、外壁、設備防腐蝕,也適用於化肥廠、化工車間、廠房防腐蝕。
四、PE型仿瓷塗料:
適用於住宅樓、辦公樓、內外牆裝飾防水,衛生間、廚房間、游泳池防水防滲。也可用於工業廠房防腐裝飾。塗刷三遍,每平方米用量為0.5公斤。
五、PE型屋面、防水材料:
1. PM108氯丁防水膠:適用於各種廠房,住宅屋面防水,二布六塗,每平方米用量2公斤。
2. PA108彈性聚氨脂防水膠:適用於各種屋面 、防水,每平方米用量1.6公斤,一布三塗。
3. PM110屋面防水膠:適用於老大難和高檔屋面防水,一布四塗,每平方米用量2公斤。
4. PM109高級嵌縫油膏:適用於各種建築物裂縫修補,屋面伸縮縫、結構縫、水池、縫道嵌縫防水。
六、PF109油灌專用導靜電防腐塗料:
適用於貯油灌,專用導靜電防腐塗料,適用於貯油灌,(包括汽油、柴油、煤油、原油、航空油等)內壁防腐且不會產生靜電,有絕對可靠的安全、防腐作用,噴塗3—5遍,每平方米用量0.8公斤。
七、H88—1型環氧帶銹塗料:
適用於各種鋼結構防腐蝕,不需噴砂除銹,施工方便、防腐效果好。H88—1底漆 塗刷2道 每平方米用量0.4公斤。H88—2面漆 塗刷3道 每平方米用量0.6公斤。
八、PL管道重防腐塗料(即環氧瀝青煤焦油塗料):
適用於各種地下輸油、輸氣、輸水管道防腐蝕,可採用一布三塗,二布六塗法,塗膜有良好的電絕緣性。每平方米用量0.8—1.0公斤左右,(根據塗膜厚度,用量按比例增加)。
九、PL型氯化橡膠防腐塗料:
適用於各種鋼結構、水泥結構、橋樑、船舶防腐蝕,塗刷三道,每平方米用量0.4公斤。
十、JC型醇酸磁漆防腐塗料:
適用於各種鋼結構防腐蝕,每平方米用量0.4公斤,塗刷3—5遍。
十一、JA60系列防火塗料:
1.JA60—1適用於電纜,建築防火。JA60—2適用於室內鋼結構、網架、建築物內壁、倉庫、捲菸廠、賓館、天棚防火,也適用於各種水泥結構、木結構、防火裝飾等。塗刷3—5遍,每平方米用量1.5公斤左右。
2.JA60—4適用於室內、室外各種結構防火,塗刷(噴塗)3—5遍,塗膜厚度3—5毫米,耐火極限1.5小時左右,每平方米用量4公斤左右。是國內先進的超薄型防火塗料。
十二、防水堵漏瞬間堵漏劑(也稱為水不漏、堵漏靈):
主要用於礦井、隧道、涵洞、地下建築物、渠壩、水池、衛生間等的快速堵漏止水,可配製成砂漿或混凝土用於結構錨固、設備基礎地腳灌漿、固位、固井及工程搶修等。
十三、防火封堵系列:
WZH-I型阻燃材料(阻燃包)、WZH-Ⅱ阻燃材料(無機堵料)是電力、冶金、化工、郵電等部門理想的防火封堵材料,是防止電纜著火和延燒的首選產品。FFD-I型複合型電纜防火堵料。是一種適應性能較強的防火封堵材料,可重複拆裝便用。無需二次防火投資。FQW-I型電纜阻燃槽合板,可在-20。C--70。C溫度及潮濕,含鹽霧、含化學氣體等環境條件的發電廠、變電所和工礦企業等電纜密集聲場所使用,實現電纜防火目的。FDM-I型防火用電纜隧道隔斷門對自行抑制火災的蔓延和保護人員安全、疏散有著極其重要的作用。
十四、ESE種植屋面(耐根穿刺)系列:
高分子複合片材耐根穿刺防水卷材是恆星防水公司針對市場上常用耐根穿刺防水卷材在施工過程中的需動用明火,材料與基層無法完全粘合及搭接部位意脫粘、起鼓等缺陷所研發,本產品由隔離膜(及線型飽和聚酯樹脂)、第一層自粘膠層、胎基(及長絲聚酯布)、第二層自粘膠層、高分子片材和內織物保護層依次疊加而成。有以下特點:1.高分子複合片材耐根穿刺產品構思新穎、節能環保、成本低廉。 2在套用性能上能夠完全阻止植物根系穿刺到卷材下表面,真正起到阻根作用。 3卷材中間的長絲聚酯布具備優良的拉力性能和較高的延伸率,對於卷材抗拉能力有了大幅度的提升;卷材下表面的高分子自粘膠層與胎基層充分的粘合在一起,從根源上解決空鼓、串水問題,起到防水作用。 4.卷材創新的引入自粘工藝,摒棄了傳統的熱熔施工法,更安全環保,更貼合綠色建築的環保理念。可廣泛套用於城市綠化環保的建築物屋面、頂面、堤壩、地下管道接口、飛機跑道的道面板縫等場合。
剛性防水
採用較高強度和無延伸防水材料,如防水砂漿、防水混凝土所構成的防水層。
依靠結構構件自身的密實性或採用剛性材料作防水層以達到建築物的防水目的稱為剛性防水。
在建築物基層上鋪貼防水卷材或塗布防水塗料,使之形成防水隔離層,這就是人們通常所說的柔性防水,俗稱“治標”外防水技術。柔性防水是一種被大量廣泛推廣套用的防水方法,如選材合理,且採用複合柔性防水技術,則使用耐久年限可達20年以上。柔性防水措施的成本費用較高,防水層一旦損壞或失效,滲漏部位難以尋找,修復較困難,一般都採用重新鋪貼卷材或重新塗布防水塗料,用更換整個防水層的辦法來進行修復。
在混凝土中摻入UEA低鹼膨脹劑、減水劑、有機矽防水劑等混凝土外加劑,使澆築後的混凝土工程細緻密實,水分子難以通過,從而達到防水目的的剛性內防水技術,工藝簡單,成本低廉。剛性防水其澆築和養護每道工序都應嚴格按要求進行施工,否則將失去防水效果。剛性防水層的抗結構變形能力較低,剛性防水層適用於防水等級為Ⅲ級的屋面防水,當屋面採用多道防水層設防時,剛性防水層也可用作Ⅰ、Ⅱ級防水屋面中的一道防水層。較為理想的防水措施是採用剛柔並用的複合防水技術,特別是重點工程,大多採用剛柔互補複合防水措施。
剛性防水可根據其構造型式和所用的材料進行分類,市場上常用的防水材料如下。
1.JWG-1型剛性防水劑,該類產品具有表面滲透結晶表面不成膜。一種無毒、無味、無色、不燃燒、透明的液體。滲透力極強,一經塗刷或噴灑在建築物及材料表面,便迅速滲入其內部2-15mm,產生脫水交聯反應,形成網狀高分子聚合物。生成物堵塞水份蒸發時產生的毛細管道及微孔;催化尚未水化的水泥顆粒水化、未完全水化的顆粒再度水化,形成不溶性的結晶體,與水泥製品牢固結合成一體。從而增加水泥製品的密實度和表面抗壓強度,產生高效的防水抗滲性及強烈的憎水性。同時還具有透氣性,使得製品不起鼓、不膨脹、不風化,達到長久穩固防水防護的效果。
適用範圍
防止雨水、地下水、工業和民用的給排水、腐蝕性液體以及空氣中的濕氣、蒸氣等侵入建築物的材料。建築物需要進行防水處理的部位主要是屋面、牆面、地面和地下室。防水材料品種繁多,按其主要原料分為4類:①瀝青類防水材料。以天然瀝青、石油瀝青和煤瀝青為主要原材料,製成的瀝青油氈、紙胎瀝青油氈、溶劑型和水乳型瀝青類或瀝青橡膠類塗料、油膏,具有良好的粘結性、塑性、抗水性、防腐性和耐久性。②橡膠塑膠類防水材料。以氯丁橡膠、丁基橡膠、三元乙丙橡膠、聚氯乙烯、聚異丁烯和聚氨酯等原材料,可製成彈性無胎防水卷材、防水薄膜、防水塗料、塗膜材料及油膏、膠泥、止水帶等密封材料,具有抗拉強度高,彈性和延伸率大,粘結性、抗水性和耐氣候性好等特點,可以冷用,使用年限較長。③水泥類防水材料。對水泥有促凝密實作用的外加劑,如防水劑、加氣劑和膨脹劑等,可增強水泥砂漿和混凝土的憎水性和抗滲性;以水泥和矽酸鈉為基料配置的促凝灰漿,可用於地下工程的堵漏防水。④金屬類防水材料。薄鋼板、鍍鋅鋼板、壓型鋼板、塗層鋼板等可直接作為屋面板,用以防水。薄鋼板用於地下室或地下構築物的金屬防水層。薄銅板、薄鋁板、不鏽鋼板可製成建築物變形縫的止水帶。金屬防水層的連線處要焊接,並塗刷防鏽保護漆。
建築防水知識:
(一)水的特性:
水是無孔不入的,它借著風壓、對流、衝擊、附著、毛細等力量,逐漸滲入建築內部,而且在滲透的過程不易從表面發覺。換言之,找尋漏水原因必須深入“內臟”分析判斷,才能對症下藥。
(二)水與水蒸氣的壓力變化:
水一旦滲透到建築物裡面,在有限的空間內,等太陽一曬,產生熱能,就形成水蒸氣,這些水蒸氣產生大量的壓力足以破壞原有的防水層,甚至於表面的裝潢及飾材(譬如,油漆脫落、壁紙發黑、磁磚鼓起、木質地板膨鼓)換句話說,一單位的水,如果全部變成水蒸氣,在建築物內部有限度的空間裡面,就產生了1240倍的壓力,這個壓力的破壞性實在太可怕了。(所以我們時常發現防水膠施工在含水的泡沫水泥上,不久就整個鼓起剝落了。)
(三)防水必須
與防水材料接著的界面必須不可有膨鼓、起沙、蜂巢、木頭、紙屑、污泥、小石塊、也不能做在鬆動不牢固的表體上,原因是附著性不良,再加上太陽紫外線破壞,建築物本身熱脹冷縮,以及水蒸氣壓力破壞,容易造成防水層老化、失敗。
(四)正面防水優於負面防水:
如屋頂防水,直接做在屋頂表面,牆壁防水應直接做在外牆、水箱漏水直接做在水箱內層,水有壓力會往他處擴散,房子裡死角的地方也不容易施工。這裡所講的“優於”是相對比較的,而非絕對性的。因為隨著科技的發達,市面上陸續有人推出背水面施工的防水材料以及高低壓注入合成樹脂產生膨脹結晶體,亦可防水,但是並非所有的場合都可成功的施工,所以非不得已,應該采正面防水施工。
(五)圍堵式的防水容易失敗:
防水應該從根源治起,用圍堵方法,水是無孔不入,也會產生壓力破壞,根源不治焉能持久,舉例來說:頂樓漏水的位置,剛好在加蓋違建房間裡面,一般人就想要從外圍作截水路,容易失敗。
(六)止漏的定義是:
不管水壓的大小,不管下幾天的雨,也不管屋頂
(七)“不花錢的防水”觀念:
要達到防水的功效不一定要花錢,混凝土除了發生“劣化”外,本身就有防水功能。譬如說:以前所蓋的房子,外牆並沒有貼磁磚、粘石子卻也不會漏水,而別墅區的房子,做了昂貴進口防水塗膜以後,仍然有漏水現象發生!
(八)沒有一種材料是萬能的:
任何一種防水材料都有它的獨特性、適用性。“一劑治百病”的觀念是錯誤的。所以如何選擇材料才是重要的課題,良好的醫生是在主導“用藥“而不是被“藥劑“牽著鼻子走”。
(九)選用防水材料優劣的判斷標準(如何適材適地使用材料):
1、與基礎之接著性。
2、透水性。
3、抗壓、撕裂強度。
4、耐候性、抗老化性。
5、表面飾材料接著性。
防水衣
1.衝鋒衣
注意事項
防水是家庭裝修中非常重要的一個環節,同其他隱蔽工程一樣,裝修時易被業主忽視。一般情況下,樓房中的衛生間、浴室和廚房的地面都做有防水層,在重新裝修地面時易被破壞。如不及時修補,日後會發生滲漏,殃及鄰里。所以在裝修時要注意保護防水層,若不慎破壞,要及時修補,以免留下隱患。
市場上出售的用於家庭裝修的防水材料主要有兩種:一種是JS防水乳膠,這種防水塗料檔次較高,效果好。使用這種塗料,施工簡單,價格不高,每平方米材料成本在25元左右,每箱25公斤,能夠塗刷13平方米,比較適合於家庭裝修用,不至於浪費,還有一個優點是做完防水可在防水層上直接進行鋪貼地磚或噴刷塗料,不用再做水泥砂漿保護層,省時省力,節省費用,此產品為河南陽光防水科技有限公司獨家推出的高科技防水產品;另一種是納米矽防水劑,屬於納米矽系列防水塗料。這種塗料防水效果好,但價格較高。每公斤價格在40-50元左右。
在做防水施工時:
第一步:應先對基層進行處理。去除原有裝飾材料,把浮土、水泥清理乾淨,要求表面平整、乾燥。
第二步:塗刷防水塗料。在做防水處理的基層上塗刷一遍,待乾燥後(大約2-4個小時)再重複塗刷一次,防水處理才算做完。防水塗料應塗刷均勻,不能有漏刷、起鼓和脫落的現象,否則會影響防水效果。在陰陽角、管道根部可加鋪一層玻璃絲布,以起到增強作用。若選用聚氨酯做防水塗料,反覆塗刷2-3遍就可以了。聚氨酯塗料本身可以形成彈性保護膜,具有一定耐拉性能。為了提高防水效果,可以鋪貼一層玻璃絲布,但費用會有所增加。
第三步:做閉水試驗,閉水試驗是檢驗室內防水質量的重要檢驗手段。在防水工程做完後,封好門口及下水口,在室內蓄滿水達到一定液面高度,24小時內液面若無明顯下降,即為合格。閉水試驗完成後,在防水塗料層上再做一層水泥砂漿保護層,注意不要破壞已做好的防水塗料層。等水泥砂漿保護層乾透後,就可以在上面鋪貼牆地磚或噴刷塗料,進行正常的裝飾裝修了。
相關書籍
基本信息
作者:《工程建設標準規範專業條文全搜尋》編委會編
叢書名:工程建設標準規範專業條文搜尋
出版社:水利水電出版社
出版時間:2006-4-1納米矽防水劑
版次:1
印次:
頁數:460
字數:750000
內容提要
從事工程建設工作的朋友們,接觸最多也最必要的資料就是標準規範。截止到2005年現行各項工程建設標準、規範、規程1162項。其中:強制性條文3項、工程建設國家標準311項、城鎮建設工程行業標準102項、建築工程行業標準143項、建設工業產品標準334項、中國工程建設標準化協會標準175項、工程項目建設標準94項。工程建設從業人員要全部熟悉這些標準幾乎不可能!甚至不能知道全部的標準名稱。
本書按照技術標準、產品標準、項目建設標準排序,再按照標準編號進行二級排序,收錄了與防水相關的國家標準、行業標準、技術標準等標準規範。
目錄
砌體結構設計規範GB 50003-2001
建築地基基礎設計規範GB50007-2002
建築結構荷載規範GB50009-2001
混凝土結構設計規範GB50010-2002
建築抗震設計規範GB50011-2001
工業企業標準軌距鐵路設計規範GBJ12-87
室外給水設計規範GBJ13-86(1997年版)
建築給水排水設計規範GB50015-2003
建築設計防火規範GBJ16-87(2001年版)
冷彎薄壁型鋼結構技術規範GB50018-2002
採暖通風和空氣調節設計規範GB50019-2003
岩土工程勘察規範GB50021-2001
廠礦道路設計規範GBJ22-87
濕陷性黃土地區建築規範GB50025-2004
工程測量規範GB50026-93
供水水文地質勘察規範GB50027-2001
城鎮燃氣設計規範GB50028-93
乙炔站設計規範GB50031-91
建築照明設計標準GB50034-2004
建築地面設計規範GB50037-96
人民防空地下室設計規定GB50038-94
動力機器基礎設計規範GB50040-96
鍋爐房設計規範GB50041-92
工業企業通信設計規範GBJ42-81
室外煤氣熱力工程設施抗震鑑定標準GBJ44-82(試行)
高層民用建築設計防火規範GB50045-95(2001年版)
工業建築防腐蝕設計規範GB50046-95
醫院污水排放標準GBJ48-83(試行)
小型火力發電廠設計規範GB50049-94
10kV及以下變電所設計規範GB50053-94
低壓配電設計規範GB50054-95
35—110kV變電所設計規範GB50059-92
3—110kV高壓配電裝置設計規範GB50060-92
給水排水工程構築物結構設計規範GB50069-2002
……

