樓盤介紹
開闊港灣位於重慶市巴南區木洞鎮移民小區,總占地面積28448平方米,建築面積51820.78平方米,其中一期建築面積16488.75平方米,混合結構,層數為6+1F,高度為21.9米,計畫總投資4500萬元。該項目一期(6~12棟)於2006年12月開工建設,已經竣工。二期工程也即將開工建設。本項目的設計單位為重慶建築工程設計院,施工單位為重慶市渝青建築工程有限公司,監理單位為重慶亞太監理諮詢有限公司。
開闊港灣樓盤效果圖“開闊港灣家園”項目是木洞地區首家高尚住宅小區,環境優美,周邊配套較完善,交通便利,主要購買人群是木洞地區居民及單位工作人員,南涪路的修建也吸引了部分主城區的居民前來購買。
周邊狀況
開闊港灣地處長江邊岸,水運交通較發達。周圍新修的南涪路途經木洞。
交通狀況
開闊港灣位於木洞鎮。巴南區木洞鎮是歷史悠久的人文古鎮,地處長江邊岸,水運交通較發達。現新修的南涪路途經木洞,計畫在今年內通車,這對木洞的經濟成長將起到很大的推動作用。
樓盤停車位
停車位:共100多個
樓盤圖片
開闊港灣樓盤交通圖
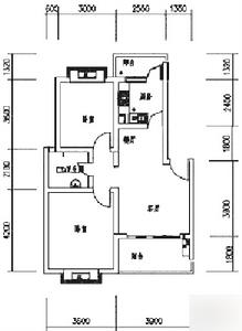
開闊港灣樓盤戶型圖
開闊港灣樓盤戶型圖