達西定律
達西定律 Darcy’s Law
反映水在岩土孔隙中滲流規律的實驗定律。由法國水力學家H.-P.-G.達西在1852~1855年通過大量實驗得出。其表達式為Q=KFh/L式中Q為單位時間滲流量,F為過水斷面,h為總水頭損失,L為滲流路徑長度,I=h/L為水力坡度,K為滲流係數。關係式表明,水在單位時間內通過多孔介質的滲流量與滲流路徑長度成反比,與過水斷面面積和總水頭損失成正比。從水力學已知,通過某一斷面的流量Q等於流速v與過水斷面F的乘積,即Q=Fv。或,據此,達西定律也可以用另一種形式表達v=KIv為滲流速度。上式表明,滲流速度與水力坡度一次方成正比。說明水力坡度與滲流速度呈線性關係,故又稱線性滲流定律。達西定律適用的上限有兩種看法:一種認為達西定律適用於地下水的層流運動;另一種認為並非所有地下水層流運動都能用達西定律來表述,有些地下水層流運動的情況偏離達西定律,達西定律的適應範圍比層流範圍小。這個定律說明水通過多孔介質的速度同水力梯度的大小及介質的滲透性能成正比。這種關係可用下列方程式表示:V=K[(h2-h1)÷L]。其中V代表水的流速,K代表滲透力的量度(單位與流速相同,即長度/時間),(h2-h1)÷L代表地下水水位的坡度(即水力梯度)。因為摩擦的關係,地下水的運動比地表水緩慢得多。可以利用在井中投放鹽或染料,測定滲流係數和到達另一井內所需的時間。在美國佛羅里達的含水層中,曾沿著多口水井,採用碳14方法測定地下水的年齡。結果測出滲流係數為每年7米。在滲透性能良好的介質中,滲流係數可高達每日6米。美國還測得過每日235米的紀錄。不過,在許多地方,速率通常是每年不超過30米。
編輯本段達西滲透實驗與達西定律
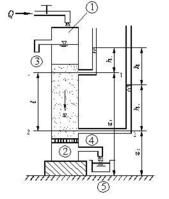
地下水在土體孔隙中滲透時,由於滲透阻力的作用,沿程必然伴隨著能量的損失。為了揭示水在土體中的滲透規律,法國工程師達西(H.darcy)經過大量的試驗研究,1856年總結得出滲透能量損失與滲流速度之間的相互關係即為達西定律。圖1達西滲透實驗裝置圖
達西實驗的裝置如圖1所示。裝置中的①是橫截面積為A的直立圓筒,其上端開口,在圓筒側壁裝有兩支相距為l的側壓管。筒底以上一定距離處裝一濾板②,濾板上填放顆粒均勻的砂土。水由上端注入圓筒,多餘的水從溢水管③溢出,使筒內的水位維持一個恆定值。滲透過砂層的水從短水管④流入量杯⑤中,並以此來計算滲流量q。設△t時間內流入量杯的水體體積為△V,則滲流量為q=△V/△t。同時讀取斷面1-1和段面2-2處的側壓管水頭值h1,h2,Δh為兩斷面之間的水頭損失。達西分析了大量實驗資料,發現土中滲透的滲流量q與圓筒斷面積A及水頭損失△h成正比,與斷面間距l成反比,即
式中i=△h/l,稱為水力梯度,也稱水力坡降;k為滲透係數,其值等於水力梯度為1時水的滲透速度,cm/s。式(1-1)和(1-2)所表示的關係稱為達西定律,它是滲透的基本定律。
達西定律編輯本段達西定律的適用範圍
達西定律是由砂質土體實驗得到的,後來推廣套用於其他土體如粘土和具有細裂隙的岩石等。進一步的研究表明,在某些條件下,滲透並不一定符合達西定律,因此在實際工作中我們還要注意達西定律的適用範圍。大量試驗表明,當滲透速度較小時,滲透的沿程水頭損失與流速的一次方成正比。在一般情況下,砂土、粘土中的滲透速度很小,其滲流可以看作是一種水流流線互相平行的流動——層流,滲流運動規律符合達西定律,滲透速度v與水力梯度i的關係可在v-i坐標系中表示成一條直線,如圖2(a)所示。粗顆粒土(如礫、卵石等)的試驗結果如圖2(b)所示,由於其孔隙很大,當水力梯度較小時,流速不大,滲流可認為是層流,v-i關係成線性變化,達西定律仍然適用。當水力梯度較大時,流速增大,滲流將過渡為不規則的相互混雜的流動形式——紊流,這時v-i關係呈非線性變化,達西定律不再適用。圖2(a)細粒土的v-i關係
達西定律圖2(b)粗粒土的v-i關係
①砂土、一般粘土②顆粒極細的粘土少數粘土(如顆粒極細的高壓縮性土,可自由膨脹的粘性土等)的滲透試驗表明,它們的滲透存在一個起始水力梯度ib,這種土只有在達到起始水力梯度後才能發生滲透。這類土在發生滲透後,其滲透速度仍可近似的用直線表示,即v=k(i-ib),如圖2(a)中曲線②所示。
達西定律
