瓊海幸福里社區內部配套設施以熱帶園林景觀為特色,擁有噴泉、流水、疊水、景觀泳池等多種水體資源和豐富綠化植被體系,並配備羽毛球場、棋牌室、桌球室、健身中心、休閒會所、社區商業等配套。
瓊海幸福里交通四通八達,新建博鰲機場,與海口、三亞兩大城市機場三位一體,保證通航全國、全球;海口—瓊海—三亞城際快速輕軌完工,屆時從瓊海 35分鐘到達海口,55分鐘到達三亞;650多公里環島高速公路將海口、三亞、瓊海緊緊聯繫;瓊海新汽車站,島內外長途、短途路線齊全,出行便捷。
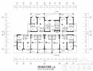
戶型鑑賞:






企業名稱瓊海幸福里房地產行銷策劃有限公司統一社會信用代碼91469002MA5RD8L23H企業詳情企業名稱瓊海幸福里房地產行銷策劃有限公司註冊號469002001103056機構代碼MA5RD8L23股票代碼暫無...
企業名稱 統一社會信用代碼 企業詳情 公司網站 手機號東方的故事。黃平在故事裡嗅出了錢的味道……第5集江白前往民族英雄、北洋...要到條件艱苦、遠在南方的瓊海基地,去完成東方瀚海未竟的事業。硯嵐聽聞此言...,她的親生父母都葬身大海,只有瓊海海邊的礁石上,不知誰刻下了“東方瀚海...
劇情簡介 分集劇情 演職員表瓊海民間,每當有回鄉,最親近的親戚會挑上一擔苙前往祝賀。在海南方言中,苙...便加以延伸。後來,苙不再僅是在南洋客歸來時才做。瓊海人大凡親戚砌灶、祈...灶、祝壽、建墳、挖井和造棺的時候做苙,苙裝在兩個有蓋的小籮里挑去,既...
古籍解釋 苙文化 製作 吃法報上大作文章,攪亂了白雪本來幸福、平靜的生活,也使江白與海悅頻頻發生了...在畢業分配時放棄了別人所羨慕的安排,而選擇去遙遠艱苦的南方瓊海某潛艇支隊。一來...。秦矢非常讚賞江白的舉動,硯嵐卻為女兒未來的幸福捏了一把汗。海悅既欣賞江...
劇情簡介 主創介紹 劇評的五指山區劃分為白沙、保亭、樂東3縣,推行鄉保甲里制。民國二十二年...並直轄瓊山、文昌、臨高、澄邁、瓊海、屯昌、儋縣、萬寧、定安9縣1市,設...
簡介 歷史沿革 行政區劃 地質 地理環境、保亭、樂東3縣,推行鄉保甲里制。 據許崇灝《瓊崖志略》記載,當時白...
地理和氣候 海南歷史 海南名人 民俗風情 海南資源、樂東3縣,推行鄉保甲里制。民國二十二年(1933年),設瓊崖綏靖委員會...並直轄瓊山、文昌、臨高、澄邁、瓊海、屯昌、儋縣、萬寧、定安9縣1市,設...
歷史沿革 行政區劃 地理環境 自然資源 人口民族,三亞,文昌,瓊海,,萬寧,儋州,東方,定安,屯昌,澄邁,臨高,白沙...、苗族居住的五指山區劃分為白沙、保亭、樂東3縣,推行鄉保甲里制。據許崇灝...自治州並直轄北部的瓊山、文昌、臨高、澄邁、瓊海、屯昌、儋縣、萬寧、定安9縣...
簡介 海南省歷史名人 民俗風情 海南省資源