基本信息
社區實景行政區域: 濱海新區
項目位置: 濱海新區塘沽新北路與廈門南路交口西南
交通狀況: 四至 東(廈門南路)北(新北路)南(車站北路)西(京津塘高速延長線)公交:825 502 五分鐘直達塘沽火車站,津濱輕軌。附近有正在建設中的京秦高鐵濱海站。
建築類型: 聯排
物業類別: 普通住宅,別墅
主力戶型: 240-290平米聯排別墅
開發商: 天津市濱海城投建業投資開發有限公司
物業費: 3.5元/月/平米
詳細信息
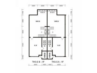
戶型圖產權年限: 70年
產權類型: 大產權房
開工時間: 20100800
容積率: 0.6
綠化率: 45%
總戶數: 326
建築面積: 106000平方米
占地面積: 140000平方米
周邊配套
周邊配套周邊配套: 就醫條件:天津第五醫院 塘沽中醫院 塘沽婦幼
就學條件:塘沽九幼、廣州道國小、塘沽十三中學、十五中學、濱海學院
商業環境:福州道生活商業區 建設中的奧特萊斯/燕沙商城/凱賓斯基酒店等
周邊公共運輸:825 502
周邊自然景觀:項目緊臨2號水庫 5號水庫 金海湖公園
其他:塘沽網球館
內部配套: 會所、游泳池、網球嘗底商、酒店
車位數: 369
採暖費: 項目採用低碳節能的地源熱泵,無採暖費
價格信息
渤海度假村價格:均價20000元/平米
售賣信息
售樓處售樓地址: 濱海新區塘沽河北路1149號(城投建業院內)
售樓電話: 400-606-6969轉13219
開盤時間: 2011年9月17日
入住時間: 預計2012年
銷售許可證: 津國土房售許字[2011]第487號
項目介紹
戶型圖一期別墅項目在設計上沿襲英倫都鐸式建築風格,尊貴別致,氣度不凡,配合原汁原味、精緻典雅的園林景觀,必將成為這個城市的典範,我們將以高標準的要求嚴格把關,為您打造名副其實的濱海第一村。

