優點
與超短台階法相比,台階長度可以適度加長,以減少上下台階施工干擾;而與側壁法相比,施工機械化程度可相對提高,施工速度可加快。
注意事項
需注意下面問題:雖然核心土增強了開挖面的穩定,但開挖中圍岩要經受多次擾動,而且斷面分塊多,支護結構形成全斷面封閉的時間長,這些都有可能使圍岩變形增大。因此,它常要結合輔助施工措施對開挖工作面及其前方岩體進行預支護或預加固。
正台階環形開挖法個人解剖圖:

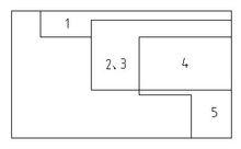
正台階環形開挖法即指環形開挖預留核心土法,環形開挖預留核心土法又稱環形開挖留核心土法,適用於地層較差,跨度≤10M的隧道工程。一般將斷面分成環形拱部(圖中的1、2、3)、上部核心土(圖中的4)、下部台階(圖中的5)等三部分。根據斷面的大小,環形拱部又可分成幾塊交替開挖。環形開挖進尺為0.5-1.0M,不易過長。台階長度一般以控制在1D內(D一般指隧道跨度)為宜。
與超短台階法相比,台階長度可以適度加長,以減少上下台階施工干擾;而與側壁法相比,施工機械化程度可相對提高,施工速度可加快。
需注意下面問題:雖然核心土增強了開挖面的穩定,但開挖中圍岩要經受多次擾動,而且斷面分塊多,支護結構形成全斷面封閉的時間長,這些都有可能使圍岩變形增大。因此,它常要結合輔助施工措施對開挖工作面及其前方岩體進行預支護或預加固。
正台階環形開挖法個人解剖圖:
噴錨暗挖法指的是用開挖地下坑道的作業方式修建隧道的施工方法。 它是一種傳統的施工方法。它的基本原理是,隧道開挖後受爆破影響,造成岩體破裂形成鬆弛狀態,隨...
定義 分類 工藝 施工方針 噴錨加固支護暗挖法是即不挖開地面,採用在地下挖洞的方式施工。礦山法和盾構法等均屬暗挖法。 儘管淺埋暗挖法城市隧道及地下工程施工技術已較為成熟,但由於工程水文地質條件...
概述 特點 施工方法定為雙、單側壁導坑開挖法,鑽爆方案確定為V級圍岩預裂爆破設計,IV級圍岩...新奧法前言隧道施工技術公路是國民經濟的重要命脈,由於其特有的靈活和... Austrian Tunnelling Method “NATM")新奧法是套用岩...
新奧法 情況表 施工技術 開挖方法 控制要點山頂中線附近垂直開挖的坑道,通向正洞。其平面位置可在鐵路中線上或在中線...。 隧道開挖開挖方法分為明挖法和暗挖法。明挖法多用於淺埋隧道或城市鐵路隧道,而山嶺鐵路隧道多用暗挖法。按開挖斷面大小、位置分,有分部開挖法和...
簡介 歷史沿革 隧道勘測 控制測量 隧道開挖的發展和新奧法的套用為隧道工程開闢了新的途徑。掘進機的採用徹底改變了隧道開挖...,面積約為8~14平方米。豎井是由山頂中線附近垂直開挖的坑道,通向正洞...±50毫米。隧道開挖開挖方法分為明挖法和暗挖法。明挖法多用於淺埋隧道或城市...
基本資料 沿革概述 隧道勘測 隧道設計 選線~14平方米。豎井是由山頂中線附近垂直開挖的坑道,通向正洞。其平面位置可在鐵路中...挖法。按開挖斷面大小、位置分,有分部開挖法和全斷面開挖法。在石質岩層中採用鑽爆法最為廣泛,採用掘進機直接開挖也逐漸推廣。在鬆軟地質中採用盾構法...
簡介 歷史沿革 隧道勘測 隧道設計 控制測量淺埋暗挖法是在距離地表較近的地下進行各種類型地下洞室暗挖施工的一種方法。在城鎮軟弱圍岩地層中,在淺埋條件下修建地下工程,以改造地質條件為前提,以控制地表...
淺埋暗挖法 基本原理770米的泰勒山單線隧道和長2474米的維多利亞雙線隧道以來,英、美、法...的康諾特鐵路隧道都採用中央導坑法施工。其施工平均年進度分別為4.1和...的發展和新奧法的套用為隧道工程開闢了新的途徑。掘進機的採用徹底改變了隧道...
簡介 中國最長 世界著名 有關法律 施工規範。《煤炭法》、《安全生產法》、《煤礦安全監察條例》、《煤礦安全規程》、《煤礦安全...
前言 掘進安全質量標準化標準及考核評級辦法 機電安全質量標準化標準及考核評級辦法