基本信息
社區實景行政區域: 江南
項目位置: 松原市青年大街與松原大路交匯鏡湖公園北湖畔
交通狀況: 緊鄰鏡湖,位於青年大街與松原大路交匯地理位置優越,15分鐘通達歐亞購物中心、大潤發超市。距松原火車站2.8公里行車約10分鐘,到松原市政府約2.9公里,行車8分鐘。周邊公交有:1路,火車站至四百貨商店;10路,飛宇金輪花園至市委,為環線;12路,江南新區至卡拉房子,可直達大潤發超市,金鑽百貨;16路, 途徑柏屹新公交路線,可直達江南各重要地點。
建築類型: 高層
物業類別: 普通住宅,公寓,商住
開發商: 吉林省柏屹房地產開發有限公司
詳細信息
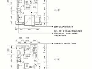
戶型圖產權年限: 70
產權類型: 大產權房
綠化率: 45%
占地面積: 62926平方米
價格信息
柏屹湖畔華庭價格:待定
售賣信息
售樓處售樓地址: 鏡湖北路(即將開幕,敬請期待)
售樓電話: 400-606-6969轉13396
開盤時間: 20120000
項目介紹
戶型圖柏屹在空間、材質、視覺、細節、工藝等全方面角度實現終極平衡. 以藝術的哲思探訪純粹心靈,於湖畔的坡地之上,實現每一位業主盡可典藏的城市居住文明,讓關於過去、現在和未來的每一分每一秒在匠心獨運的藝術美學空間中流逝並雋永不息。
柏屹新階層社區,120-300㎡奢華階級宅邸,設計師通過對空間細節的斟酌與考慮,反覆提煉和升華出僅四類符合上層人士偏執性格的產品:超空間BOX;情景HOUSE;城市公館;頂層penthouse。
景觀設計:
湖畔華庭完全開放的現代歐陸園林設計,以其蜿蜒水系,中央水景,淺灘棧橋,綠地族群,車綠帶、廣場綠帶、環水綠帶、庭院休息綠地、花園林蔭綠地,實現層層遞進、步移景異的永恆的景觀力量,讓嬌小的強壯,讓呆板的活潑,讓獨有的景觀線私有,讓心靈的對話永恆。
物業服務:
柏屹物業方面,引入國際領先的物業管理服務供應商,以其英式物管成功經驗,在柏屹項目中完美貫徹,為城市帶來至高級別的品質人居體驗,為松原高端地產帶來一場歷史性的變革。

