用途
松套法蘭毛坯常用作連線是材料的變更。
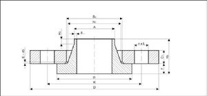
松套法蘭是利用翻邊、鋼環等把法蘭套在管端上,法蘭可以在管端上活動。鋼環或翻邊就是密封面,法蘭的作用則是把它們壓緊。由此可見由於被鋼環或翻邊擋住,松套法蘭不與介質接觸。
松套法蘭適用於鋼、鋁等非鐵金屬及不銹耐酸鋼容器的連線和耐腐蝕管線上。
松套法蘭是可以活動的法蘭片,一般是配套在給排水配件上(伸縮節上最常見),廠家出廠時伸縮節兩端就各有一片法蘭,直接與工程中的管道、設備用螺栓連線。
就是帶活套的那種法蘭。一般用在管道上,那樣的話,鬆掉螺栓可以鏇轉兩邊的管道,再擰緊。可以較方便的拆裝管道 。松套法蘭也叫做活套法蘭。
生產標準
松套法蘭國標:GB/T9112-2000(GB9113·1-2000~GB9113·4-2000)
美標:ANSI B16.5 Class150、300、600、900、1500(WN、SO、BL、TH、LJ、SW)
日標:JIS 5K、10K、16K、20K(PL、SO、BL、WN、TH、SW)
德標:DIN2573、2572、2631、2576、2632、2633、2543、2634、2545(PL、SO、WN、BL、TH)
化工部標準:HG5010-52~HG5028-58、HGJ44-91~HGJ65-91、HG20592-09系列、HG20615-09系列
機械部標準:JB81-94~JB86-94、JB/T79-94~JB/T86-94、JB/T74-1994
壓力容器標準:JB1157-82~JB1160-82、JB4700-2000~JB4707-2000 B16.47A/B B16.39 B16.48
生產材料
帶頸松套法蘭碳鋼(Carbon Steel):ASTM A105、10#、20#、Q235、Q345B、16Mn、 ASTM A350 LF1, LF2 CL1/CL2, LF3 CL1/CL2、ASTM A694 F42, F46, F48, F50, F52, F56, F60, F65, F70;
不鏽鋼(Stainess Steel): ASTM A182 F304、304L、 F316、316L、1Cr18Ni9Ti、0Cr18Ni9Ti、321、18-8;
合金鋼(Alloy Steel): ASTM A182 F1、 F5a、 F9、 F11、 F12、 F22、F91、A182F12、A182F11、16MnR、Cr5Mo、12Cr1MoV、15CrMo、12Cr2Mo1、A335P22、 St45.8/Ⅲ;
