基本信息
1) 接觸軌的發展簡介
接觸軌是將電能傳輸到捷運和城市軌道交通系統電力牽引車輛上的裝置。它是一種古老的電力牽引車輛供電形式,早在1891年就有接觸軌雛形的產生。二十世紀前半個世紀一直只使用鋼接觸軌,二十世紀中期以後對鋼接觸軌的材質進行了改進,形成所謂的“鐵接觸軌”實際上是進行了材質變化,降低了雜質,加入了提高導電性的元素,單位電阻得到了降低。我國北京捷運一號線、北京捷運2號線工程、北京捷運復八線工程等所用的接觸軌就屬於這類。隨著捷運和城軌交通事業的發展,面對接觸軌大電流,輕型化的要求,70年代末出現了一種新型的接觸軌-鋼鋁複合接觸軌,德國在1978年建成了世界上第一段鋼鋁複合軌,運行長度3.3公里。1996年後,美國、日本、義大利、馬來西亞、泰國等國家都開始套用,至今世界上已建成鋼鋁複合接觸軌運營線路1000多公里,遍布歐洲、美洲、大洋洲、亞洲。鋼鋁複合接觸軌以傳輸電流大,重量輕,安裝方便而得到廣泛套用,近幾年我國捷運或城鐵採用鋼鋁複合軌投入運行的的有武漢捷運一期,天津捷運一期。特別是廣州捷運4號線是國內第一個採用1500V直流供電系統供電的鋼鋁複合軌,而該鋼鋁複合軌是由廣州捷運總公司與寶雞器材廠聯合開發的,從2005年12月28日開通以來一直運營良好,2007年4月27日鋼鋁複合接觸軌及附屬檔案已通過陝西省科技廳組織的科技成果鑑定。
2)接觸軌系統組成
接觸軌系統主要由鋼鋁複合軌(包括鋁軌本體和不鏽鋼帶)、膨脹接頭、端部彎頭等相關部件及絕緣支撐裝置組成,為電力機車組提供電能。電力的輸送是通過電客車集電靴與複合軌的接觸來實現的。
複合軌由高導電性的鋁和一層耐磨的不鏽鋼帶機械複合而成的,其安裝在絕緣支架上與木枕、混凝土軌枕或者其它基座相連。
3)接觸軌的安裝方式
接觸軌通過集電靴將電能傳輸給車輛。根據集電靴從接觸軌的取流方式不同,接觸軌的安裝方式可分為:上接觸、下接觸、側接觸三種方式。
法國、美國、英國一直採用易於安裝的上接觸設計。我國的北京捷運一號線、北京捷運2號線工程、北京捷運復八線工程等接觸軌也屬於上接觸方式。而德國、俄羅斯、奧地利和歐洲其他國家主要採用下接觸方式。我國投入運營的武漢捷運一期、廣州捷運4號線也屬於下接觸方式,深圳市軌道交通二期龍崗線鋼鋁複合軌安裝方式也屬於下接觸。側接觸方式由於安裝精度要求高,用的較少,只在四軌系統有套用。
接觸軌龍崗線接觸軌採用下部授流接觸軌,與其他兩種接觸方式相比下部授流接觸軌防護罩對帶電接觸軌的防護性能好,帶電接觸軌不容易被無章識地觸碰到,能確保人身安全,另外,下部授流方式的遮擋雨雪條件也優於上部授流方式,能確保牽引網系統的安全可靠運行。
1.1.2 主要技術參數
| 標稱電壓 | DC1500V |
| 最高電壓 | DC1800V |
| 最低電壓 | DC1000V |
| 接觸軌最大持續載流量 | 3000A |
| 接觸軌最大溫升 | 45℃ |
| 接觸軌帶電部分與結構體、車體的最小淨距 | 靜態為150mm,動態為100mm |
1.1.3 接觸軌結構斷面及其參數表
| 名稱 | 鋼鋁複合接觸軌 | 接觸軌的斷面結構 |
| 軌高(mm) | 105 | |
| 軌底寬(mm) | 80 | |
| 接觸面寬(mm) | 65 | |
| 總寬(mm) | 92 | |
| 重量(kg/m) | 14.58 | |
| 標準長度(m) | 15 | |
| 20℃時的單位電阻(Ω/km) | ≤0.0083 | |
| 接觸軌持續電流 | ≥3000 A | |
| 60秒鐘的峰值電流 | ≥10000 A | |
| 3秒鐘動穩態電流 | ≥60000 A |
接觸軌的斷面結構:1.1.3 鋼鋁複合軌及5種附屬檔案簡介
1)鋼鋁複合接觸軌
鋼鋁複合接觸軌由輕質的導電鋁軌本體和非常耐磨的不鏽鋼接觸面構成。軌身由高強度耐腐蝕鋁合金(6101-T6)擠壓而成。接觸面是連續的6mm厚的不鏽鋼帶。不鏽鋼帶同導電鋁軌機械複合,以確保它們之間的金屬結合,從而保證鋁和不鏽鋼帶間的較小的接觸電阻。20℃時,複合軌的直流電阻不超過8.5毫歐/米。複合軌供貨長度為15米,每根3000A接觸軌的重量約為218kg,長度為15m。
在標準正線接觸軌是按照標定距離3~5米置於絕緣支架裝置之上的(托架定位的允許公差±10毫米)。註:在特殊地段,如車站處、轉折處、彎道處、坡道處或膨脹接頭處,絕緣支架裝置之間的距離應不小於3m。如圖1所示。
接觸軌圖1 接觸軌安裝到位示意圖2) 普通接頭(魚尾板)
普通接頭適用於固定連線相鄰接觸軌並傳導電流。複合軌的連線孔和魚尾板都有最小的公差,這樣在相互配合時可以保證只有很小的或者幾乎沒有任何相互移動。接觸軌接縫部位要求安裝平齊,保證覆不銹剛帶一側安裝平齊,不允許有高低不平,或扭轉現象,安裝精度為0.5mm。安裝效果如圖2所示:
接觸軌圖2 安裝效果圖
3) 膨脹接頭
膨脹接頭的設計使得其可以適應因環境溫度變化引起的熱脹冷縮、電流引起的溫升、日照和複合軌的移動。膨脹接頭組件要求與相鄰行車軌之間接觸面對齊,保證列車受電靴的平滑通過。
接觸軌膨脹接頭長1975 mm,在直線段,膨脹接頭應儘量安裝在兩個支架裝置的中心部位,最少膨脹接頭的每一端距支架裝置的距離不小於400mm。彎道段中設定膨脹接頭,則會使絕緣支架及膨脹接頭受到很大的張力。膨脹接頭的滑動塊會因為這一額外張力而加速磨損,絕緣支架也會很快磨損。所以一般不在彎道處設定膨脹接頭。在特殊情況下,也會出現半徑小於300m的彎道必須設定膨脹接頭的情況,此時膨脹接頭依然能起到作用,可是會使膨脹接頭張開及閉合的張力轉移作用於絕緣支架上。鑒於錨固之間的距離,這一點應引起重視。圖12 膨脹接頭的實際安裝效果圖
4) 電連線用中間接頭
電連線用中間接頭除了連線兩根獨立的鋼鋁複合軌外還用於將外部電流引入到接觸軌,安裝效果如下圖。每箇中間接頭可以連線8~12根240mm2的導線。導線必須留有足夠餘量,避免向複合軌施加額外的力,從而阻礙複合軌在縱向的移動。
接觸軌圖13 電連線用中間接頭安裝效果5) 端部彎頭
端部彎頭按照正線和車場線分為兩種,正線彎頭長度為5.2m,端部彎頭兩端的高度差126mm;車場線彎頭長度為3.4m,端部彎頭兩端的高度差129mm,端部彎頭同接觸軌之間採用普通接頭連線。其作用是為了保證列車在額定速度運行時,受電靴能夠平滑的接觸和脫離複合軌。
圖14 端部彎頭實際安裝效果
6) 普通防爬器
接觸軌
接觸軌接觸軌普通防爬器是用於防止接觸軌長軌向兩側不均勻竄動的固定連線件,安裝在長軌的中部。一套普通防爬器由一對鋁製防爬器本體、兩根螺栓、兩個平墊、兩個彈墊、兩個螺母組成。通常在一個安裝位置安裝兩套普通防爬器,分別位於絕緣支撐的兩側,安裝效果如下圖14所示:7) 錨結用防爬器
接觸軌錨結用防爬器是用於防止接觸軌長軌向兩側部均勻竄動的固定連線件,安裝在曲線部位絕緣支架的兩側,下錨固定,安裝效果如下圖17所示。
接觸軌1.1.4 故障處理
本節對接觸軌系統的一般故障,給出了可能的解決辦法。
1) 接觸軌
| 故障 | 可能的原因 | 處理方法 |
| 過熱 注意:如果發生過熱,周圍的部件很可能因其燃燒和電弧而造成損壞。視損壞情況進行進一步的維修。 | 普通接頭連線鬆動 | 鬆開普通接頭,用金屬刷清掃接觸面。 徹底檢查有電弧損傷的部件,如果沒有異常,用金屬刷清理接觸面的毛刺並塗上一層導電油脂。重新安裝普通接頭並注意墊片的順序。 螺栓緊固力矩70 Nm。 |
| 過載 | 檢查電氣負荷。根據系統參數調整。 | |
| 電連線中間接頭鬆動 | 拆開電連線中間接頭,重新清理接觸面,塗導電油脂,然後安裝說明重新安裝。 | |
| 接觸軌不鏽鋼接觸面的不均勻磨損 | 受電靴與接觸軌未對準 | 參照走行軌檢查接觸軌的接觸面。接觸軌的中心與最近的走行軌的內側的水平距離應為726.5±5mm,垂直距離為200±5mm。調整相關的支架。如果接觸軌和受電靴的角度不同,將會導致有效接觸面減小,局部發生過熱現象,並可能產生嚴重的電磨損。 檢查支架表面。如果損壞就更換。 |
| 檢查支架的緊固件是否鬆動。按照供貨商的規範重新調整和緊固螺栓 | ||
| 在軌間連線處產生微小的彎曲 | 普通接頭緊固件鬆動 | 重新調整:拆開普通接頭,清理乾淨,在接觸面塗導電油脂。 |
| 用70 Nm的力矩緊固螺栓、螺帽。 |
2)普通接頭和電連線用中間接頭
| 故障 | 可能的原因 | 處理方法 |
| 過熱 | 軌間的普通接頭板鬆動 | 檢查螺栓、螺帽、墊圈 |
| 拆開普通接頭,用金屬刷清理配合面。 | ||
| 在普通接頭和軌的配合面塗導電油脂。 安裝普通接頭和螺栓。使用防卡死潤滑劑防止不鏽鋼螺栓卡死。 確保螺栓的緊固力矩為70Nm。 |
3) 膨脹接頭
| 故障 | 可能的原因 | 處理方法 |
| 過熱 | 軌間連線鬆動 | 重新調整普通接頭 |
| 電連線板接觸不良 | 鬆開U螺栓。調整電連線板主副板位置。 | |
| 過載 | 檢查負載情況。根據設計要求調整。 | |
| 不鏽鋼帶磨損不均勻 | 接觸軌和受電靴對正不好 | 參考走行軌檢查膨脹接頭的接觸面。膨脹接頭中心與最近的走行軌的內側的水平距離,接觸面間的垂直距離應符合設計要求。如果軌和受電靴的接觸面不平,將會減小有效接觸面,產生過熱,進而可能產生嚴重的電磨損。 |
| 檢查支架的緊固件是否鬆動 | ||
| 在軌間的連線處產生微小的彎曲 | 軌間的連線鬆動 | 重新調整普通接頭。 使用金屬刷清理配合面,並重塗導電油脂。 |
4) 端部彎頭
| 故障 | 可能的原因 | 處理方法 |
| 接觸軌過度彎曲 | 振動 | 檢查絕緣支架底座固定螺釘,用正確的力矩緊固。 |
| 檢查支架的緊固螺栓,用正確的力矩緊固螺栓 | ||
| 連線電纜鬆動 | 清理接觸面,重塗導電油脂,重新按照正確的力矩緊固螺栓。 |
小車系統
1.2.1 懸垂式開關小車系統的構成和特點
1)集電小車:集電小車是滑觸線集電器和電流控制單元的載體,集電小車能夠靈活選擇有維修人員手工或者機車自動牽引。牽引索設定有過拉力保護裝置保護小車不被損壞。
2)安全滑觸線系統:安全滑觸線提供了檢修車間全長範圍的直流電源,多個集電小車共用一套滑觸線。
接觸軌3)電流控制單元及其附屬檔案:電流控制單元提供有一個負載電路和一個控制電路。在負載電路中提供有一個電源插頭,根據機車的用電需求能夠靈活的選擇接通或者分斷電源插頭上的電流。控制電路與電源插頭配合實現安全互鎖功能。
1.2.2 懸垂式開關小車系統的主要特點
1)完善的安全互鎖功能:
(a)電源插頭在插入機車插座前任何情況下都不會接通電源;
(b)插頭正確插入插座,並按正確程式操作後才能接通插頭電源提供給機車;
(c)插頭在誤拔出的情況下能夠自動切斷電源。
2)高效、靈活、簡便的操作方式:
(a)所有的插頭插拔操作以及供斷電工作均可以由一名操作人員在1分鐘內完成;
(b)每部集電小車都可以在車庫內全程移動,既可以由機車自動牽引也可以由一名操作人員人工牽引移動;
(c)每部小車的連鎖控制單元都可以單獨控制一個電源插頭,任何一個集電小車都不會影響其他集電小車的工作,能夠更高效靈活的支持維護工作
1.2.3 集電小車
1) 集電小車組成
接觸軌
接觸軌集電小車是由集電器和運載小車組成。(a)雙臂集電器特點
· 每台集電小車採用雙臂集電器配置,最大額定電流750A。在100%負荷下連續下工作溫升不超過30度。
· 雙臂集電器安裝接觸可靠,確保動力及控制信號的平穩準確傳輸。
· 超長集電器碳刷壽命,超過2萬公里的使用壽命。
· 單只集電器接觸壓力最大僅28N,滑動摩擦力小,小車拖動靈活。
· 集電器為鋁製表面電泳處理,重量輕耐腐蝕。集電器緊固件或銷件全部為不鏽鋼材質。
2)集電小車特點
· 懸吊式拖動小車系統具有重量輕、剛性好、適應能力強、拖動輕便、可靠性高外形美觀等特點 。
· 小車結構件全部熱浸鋅,緊固件全部採用304不鏽鋼製成。
· 輪系構成 :1)4隻125mm直徑大型行走輪;2)4隻固定在工字鋼腹板上的80mm直徑張緊輪;3)4隻60mm防跳輪。
· 行走輪為德國進口,採用德國拜仁化工VULKOLLAN材質外圈,具有抗磨、減震、運行無聲等特點。軸承採用免維護自潤滑軸承 。
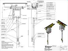
1.2.4 滑觸線系統
接觸軌1)滑觸線系統組成support arm 支撐臂:提供滑線系統安裝支撐結構。
conduCtor rail 滑觸線:提供電流載體。
Hanger ClalnP 吊夾:提供滑線體安裝固定結構。
Power feed 供電點:提供電源接入點。
Rail ConneCtor 滑線連線器:連線滑線體的裝置。
Anchor Cla 即固定夾:緊固滑線系統,並使滑線向期望方向移動的裝置。PE 底線:帶黃綠線標的滑觸線。
Towing arm 拖動臂:提供集電器安裝基準,並拖動集電器移動的裝置。current ColleCtor 集電器:在滑線上取電的裝置。
End Cap 端帽:滑線系統末端保護裝置。
2)滑觸線系統特點
· 採用安全滑觸線為懸垂式開關小車提供動力及控制電源
· 滑觸線遵循IEC標準進行設計。通過UL/CE認證。
· 最大能夠提供單根額定電流1250A的滑觸線供電。
· 安裝占用空間小,最大寬度僅需640mm。
· 提供單獨的接地線使系統變得更加安全。
· 滑觸線導體外側帶有絕緣防護層,防護等級達到IP23,滿足手指防護標準。
3) 滑觸線操作安全注意事項
(a) 關於集電器的並聯特性。
由於同相集電器時並聯連線,所以任意時候只要有一個集電器與帶電滑線連線,其它的集電器和與之接觸的物體均處於帶電狀態!! !
(b)典型的錯誤操作有:
· 因集電小車跨接轉龍段和主龍段,而轉龍段或主龍段的其中一段是處於斷電維修狀態。維修時建議關斷主供電電源並鎖死開關。
· 因帶電檢查集電器。
· 因集電器放錯相
· 因集電器未正確放入滑觸線
1.2.5 電流控制單元及其附屬檔案
1)插頭電源智慧型控制
· 每台懸吊式小車上配備有一套智慧型控制單元。
· 每套智慧型控制單元相互之間獨立,工作狀態相互不受影響。
· 在接頭正確插進車輛插座前任何情況下都不帶電;
· 在接頭正確插進車輛插座後通過控制單元自帶的操作控制臺可以快速接通電源;
· 當誤操作將帶電接頭從車輛插座拔出時,控制單元自動切斷插頭上的電源。
2)電源狀態警示
· 系統具有完善的集電小車及滑觸線帶電警示功能。
· 在智慧型控制單元上安裝有電源指示燈。
· 在醒目位置布置有電源指示燈提示滑觸線帶電。
· 在電源插頭前端的電纜上提供有兩色發光光帶標明電源插頭是否帶電。
3)機車自動牽引
· 在插頭插好並正確連線牽引索後,機車能夠牽引集電小車自動運行,運行過程無需人工干預。
· 電源插頭帶有鎖扣,有效防止插頭脫落及誤拔髮生。
· 集電小車上帶有牽引索,牽引索懸掛在機車上拖動小車運行,電纜上不會承受牽引力。
4)過拉力保護功能
· 電纜過拉力保護裝置。當機車駛離檢修車間的時候,如果電纜插頭忘記拔出電纜能夠在達到設定拉力情況下斷開並自動切斷電纜上的電源,保護懸吊小車及智慧型控制單元的安全。
接觸軌· 鋼絲繩過拉力保護裝置。當電纜的過拉力保護裝置起作用的同時,鋼絲繩過拉力保護裝置將提供同樣的自動分斷功能。5)帶有控制反饋和手指防護功能的電源插頭
· 電纜插頭包含有一根動力芯及兩根控制芯。
· 電纜插頭防護等級達到IP2,防止手指接觸觸電。
· 電纜插頭兩段式插拔。
ü 在插頭插入插座時,動力芯首先插入,控制芯隨後插入,控制芯插入後才能接通電源。
ü 在插頭拔出插座時,控制芯首先被拔出,確保電源切斷。動力芯在控制芯拔出後才能被拔出。
· 電纜插頭帶有助力把手方便操作。
· 單人即可對插頭進行插拔操作,有效提高工作效率。
4.3 接觸軌帶電顯示裝置
1.3.1 正線接觸軌帶電顯示裝置
1) 概述
深圳市軌道交通二期龍崗線工程供電系統分別在紅嶺、田貝、草埔、大芬、塘坑、愛聯、雙龍站區間軌行區的夜間停車線、折返線、道岔區共設定14套正線接觸軌帶電顯示裝置。
正線接觸軌帶電顯示裝置主要由檢測控制箱(包含電壓檢測單元、控制單元)及警示燈組成,裝置通過對接觸軌DC1500V採用電阻分壓並採取光電隔離措施後控制警示燈的紅、綠色狀態,警示燈紅色表示接觸軌帶電、綠色表示接觸軌不帶電,裝置具有光電隔離、熔斷器保護、帶電狀態顯示、試驗等功能。
2)系統構成及原理
接觸軌正線接觸軌帶電顯示裝置主要由檢測控制箱(包含電壓檢測單元、控制單元)及警示燈等組成,裝置構成如圖1-1所示。
圖1-1:系統構成示意圖
電壓檢測單元與控制單元採用隔離措施共同安裝在檢測控制箱內,警示燈則另設立柱安裝在檢測控制箱附近。
(a) 電壓檢測單元
正線接觸軌帶電顯示裝置電壓檢測單元主要由直流熔斷器FU1、分壓電阻R1、分壓電阻R2以及光控繼電器GK1等組成。
電壓檢測單元由接觸軌引入DC1500V電力信號,經過直流熔斷器FU1、分壓電阻R1、分壓電阻R2與大地構成檢測輸入迴路,當接觸軌帶電時,分壓電阻R2兩端電壓約為DC220V,觸發光控繼電器,並使光控繼電器電晶體導通輸出帶電檢測信號。
l 元件選型
ü 直流熔斷器FU1選用西安西聯電器有限公司生產的DTR系列熔斷器,直流熔斷器額定電壓2000V、額定電流1A,該系列熔斷器廣泛套用於捷運行業,並具有鐵道部產品質量檢驗中心認可的檢驗報告。
ü 分壓電阻R1、R2選用耐高壓型電阻,額定電壓2000V、額定功率50W(迴路計算最大電流不大於3mA,R1、R2電阻工作功耗不大於4.5W,選用50W電阻能夠保證穩定運行需要)。R1電阻值為500kΩ,R1電阻值為約120kΩ,經迴路計算(光隔輸入迴路電阻約360kΩ)得:在接觸軌電壓DC1500V時,R1兩端電壓約為DC220V,滿足光控繼電器輸入電壓範圍。
ü 光控繼電器KG1選用南京億發公司生產的GKJ型光控繼電器,輸入端額定電壓DC220V,輸入端對輸出端、外殼的隔離電壓均為2500V,即使在分壓電阻R1擊穿或短路等最壞工況下也能保證控制單元的電氣安全,外形如
l 電氣安全措施
ü 電壓檢測單元主迴路直流熔斷器、分壓電阻元件額定工作電壓均超過接觸軌瞬時最高電壓1980V。
ü 接觸軌DC1500V接入端設定直流熔斷器保護措施,保證接觸軌帶電顯示裝置不會影響直流牽引供電系統。
ü 電壓檢測單元與控制單元之間採用光控繼電器光電隔離措施,隔離電壓高達2500V,保障維護人員及電氣設備的安全。
ü 所有電壓檢測元件安裝在絕緣板上,並且所有電壓檢測元件帶電部分均與箱體(箱體接地)距離不小於40mm,滿足相關電氣規範(見注)。
ü 電壓檢測單元與控制單元採用獨立間隔分離安裝,並分別獨立設定門鎖保障安全。
ü 註:國際標準EN50123-6《直流開關櫃裝配》6.2安裝要求中明確表示:額定電壓為直流1.5kV時,兩極對地的安全距離為22mm。
(b) 控制單元及警示燈
正線接觸軌帶電顯示裝置控制單元主要由就地信號燈LD/HD、試驗按鈕HA、開關電源DC1、空氣開關ZK1等組成,實現正線接觸軌帶電顯示控制功能,並可通過試驗按鈕檢驗警示燈狀態。
l 控制原理
ü 如圖1-4所示,當接觸軌帶電狀態時,GK1光控繼電器輸入端電壓約為DC220V,輸出端電晶體飽和導通,K1繼電器受電,K1常開接點閉合警示燈JD亮紅燈,表示接觸軌帶電狀態;反之警示燈JD亮綠燈,表示接觸軌不帶電狀態。
ü 控制單元設定試驗按鈕HA,當按下試驗按鈕警示燈的紅燈、綠燈均應同時點亮,可手動檢驗警示燈的好壞狀態。控制單元並設有信號燈LD/HD,可在檢測控制箱就地顯示及檢驗警示燈狀態。
l 警示燈
ü 警示燈採用上海二工電氣有限公司生產的TL-70系列直徑70mm組合式警示燈,安裝於電壓檢測單元附近,靠近疏散平台出口與道岔相連處,防護等級為IP65可滿足戶外安裝要求。
ü 警示燈與控制單元採用3芯控制電纜連線,具有紅色、綠色兩種狀態,紅色表示接觸軌帶電狀態,綠色表示接觸軌不帶電狀態。安裝立柱上設定有“接觸軌帶電顯示”鋁質警告指示牌,如圖1-5所示。
1.3.2 車輛段接觸軌帶電顯示裝置
1)概述
深圳市軌道交通二期龍崗線工程供電系統分別在車輛段的運用庫停車線、運用庫輪旋線、靜調庫靜調線及檢修庫外中性區共設定38套車輛段接觸軌帶電顯示裝置。
車輛段接觸軌帶電顯示裝置主要由控制單元及警示燈組成,控制單元根據該隔離開關分合閘位置,控制警示燈的紅、綠色狀態,並在接觸軌帶電(隔離開關合閘)瞬間啟動10s蜂鳴警報,警示燈紅色表示接觸軌帶電、綠色表示接觸軌不帶電,裝置具有接觸軌帶電聲光警示及試驗等功能。
2) 系統構成及原理
車輛段接觸軌帶電顯示裝置主要由控制單元及帶蜂鳴的警示燈組成,實現接觸軌帶電聲光警示及試驗等功能。系統構成如圖2-1所示:
圖2-1:系統構成示意圖
(a) 控制原理
車輛段接觸軌帶電顯示裝置控制單元主要由延時繼電器KT1、空氣開關ZK1等組成,實現車輛段接觸軌帶電顯示控制功能,如圖2-2所示。
註:1、QS為隔離開關位置輔助接點。
2、JD、HZ為聲光警示燈另設立柱安裝。
如圖2-2所示,當負責本供電分區的隔離開關QS處於合閘位置時,警示燈JD亮紅燈並蜂鳴警報表示接觸軌帶電狀態,KT1延時繼電器延時10秒自動斷開停止警報聲音;當負責本供電分區的隔離開關QS處於分閘位置時,警示燈JD亮綠燈表示接觸軌不帶電狀態。
(b) 警示燈
ü 警示燈採用上海二工電氣有限公司生產的TL-70系列直徑70mm組合式警示燈,防護等級為IP65可滿足戶外安裝要求。
ü 警示燈與控制單元採用4芯控制電纜連線,具有紅色、綠色兩種狀態並具有120dB蜂鳴聲音警報提示,聲音與警示燈顏色可分別控制,警示燈紅色表示接觸軌帶電狀態、蜂鳴警報10秒自動停止,警示燈綠色表示接觸軌不帶電狀態。立柱上設定有“接觸軌帶電顯示”鋁質警告指示牌。
