導軌式安裝電能表
圖1 傳統壁掛式電能表下面以上海ACREL的DTSF1352系列電能表為例,闡述導軌式安裝電能表(圖2)的功能及套用。
圖2 導軌式安裝電能表電錶採用LCD顯示,測量電能及其它電參量,可進行時鐘、費率時段等參數設定,並具有電能脈衝輸出功能。可用RS485通訊接口與上位機實現數據交換。
導軌式安裝電能表具有體積小巧、精度高、可靠性好、安裝方便等優點,性能指標符合國標GB/T 17215、GB/T 17883和電力行業標準DL/T614對電能表的各項技術要求,適用於政府機關和大型公建中對電能的分項計量,也可用於企事業單位作電能管理考核。套用場合
圖3 導軌式電能表安裝於配電箱中ACREL公司集多年電錶設計之經驗,採用國際先進的晶片及技術設計而成了DTSF1352系列導軌式安裝電能表。產品設計充分考慮了結構微型化、成本效能化、智慧型性和可靠性,有以下特點:
l 計量總有功電能,反向計入總電能
l 可選分時復費率電能計量功能
l 支持RS485通訊接口,通訊規約可選(MODBUS-RTU或DL/T645規約),帶電能脈衝輸出
l 電流一次接入,二次接入均可,電壓信號供電,不需要輔助電源
l 體積小巧,寬度為18mm的倍數,與微型斷路器完美配合,帶鉛封防竊電
l DIN35mm標準導軌安裝方式,輕鬆置入各類照明箱和照明櫃
l 7位寬溫型LCD顯示,輪顯
導軌式安裝電能表的出現背景
隨著經濟的飛速發展,各行各業對電的需求越來越大,電力資源緊缺和不同時間用電量不均衡的現象依然嚴重。為緩解我國日趨尖銳的電力供需矛盾,改善用電不均衡、提倡節約用電量、提高全國的用電效率,合理利用電力資源已成為當前構建和諧社會的基本國策之一。
電能的消耗大量集中在低壓配電終端,為了加強終端電能的計量考核和管理,方便用戶的現場使用、改造和升級,針對傳統DDSD和DTSD系列壁掛式安裝電能表在現場使用安裝的不便而設計一種微型化導軌式安裝電能表,具有測量精度高、過載能力強、性能穩定可靠、工作電壓範圍寬、自身功耗低等優點。並且其體積小,重量輕,結構模數化,可與微型斷路器配合使用安裝於配電箱內,實現終端配電電能計量。
設計原理
圖4 單相復費率多功能電能表原理框圖導軌式三相電子復費率電能表採用計量晶片ATT7030A和飛思卡爾公司的8位單片機M68HC908LJ12實現。其原理為:線路上實時電壓、電流經高精度互感器耦合,採樣電路分別採樣後,送到電量計量專用晶片ATT7030A(A/D轉換器轉化成數位訊號,通過片內專用DSP運算後輸出電能脈衝),通過脈衝送到MCU中,並根據預先設定的時段完成分時有功、無功電量計量和最大需量計算,分別作出相應處理,並存貯到EEPROM中;同時實現顯示和輸出、RS485串列數據傳輸。具體設計框圖如圖5。
圖5 三相復費率多功能電能表原理框圖功能簡介
電能計量l 計量正、反向有功電能,並具有功率方向指示功能
l 電能量按總、尖、峰、平、谷分別累計、存儲
l 電錶記憶體儲3個月的凍結數據
l 電能量數據凍結轉存日預設設定為每月末24時(月末凍結)
l 斷電後,所有存儲數據不丟失,並能保持10年以上
l 具有百年日曆、時間,閏年自動切換功能,時鐘誤差在0.5s/天以內
l DDSF1352可程式設定峰、平、谷3種費率,日時段可設8個時段,時段最小間隔為1分鐘
l DTSF1352可程式設定尖、峰、平、谷4種費率,日時段可設8個時段,時段最小間隔為1分鐘
l 7位寬溫型LCD顯示。
l 可實現數據輪顯,輪顯時間為4s。
l 電能脈衝和當前費率時段用LED指示
l 電錶地址設定
l 時間日期設定
l 費率時段設定
l 電量底數清零設定
有功電能脈衝輸出,用於校表、採集電能量
無源光電隔離型輸出連線埠,脈衝寬度:80ms±20ms
通過RS485通信,上位機可實現自動抄表功能
技術規格參數
測量精度準確度等級:有功1.0級
時鐘準確度:日誤差≤0.5s/d
起動電流:直接接入 0.004Ib;經CT接入 0.002In
電流規格:1.5(6)A、5(20)A、10(40)A、20(80)A
電流線路功耗:≤1VA
額定電壓:220V,3×220/380V
工作電壓:正常工作電壓範圍:0.9~1.1Un;極限工作電壓範圍:0.7~1.2Un
電壓線路功耗 ≤2W,5VA
額定頻率 50Hz
輸出方式:集電極開路的光耦脈衝,1路脈衝輸出
脈衝寬度:80ms±20ms
1路RS485通訊接口,Modbus-RTU通訊協定(其他可定製)
通信速率 9600bps(默認)、4800bps、2400bps、1200bps可選
平均無故障工作時間
連續工作時間≥50000h
正常工作溫度:-10℃~+45℃
極限工作溫度:-20℃~+55℃
存儲溫度:-40℃~+70℃
相對濕度:5%~95%不結露,無腐蝕性氣體
海拔:≤2500m
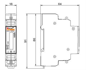
產品介紹
圖6 正視圖 側視圖功能
● 計量
計量單相有功總電能,反向計入總電能
● 顯示
6位寬溫型LCD顯示;有功電能脈衝LED指示
● 輸出
有功電能脈衝輸出,無源光電隔離型輸出連線埠
| 項目 | 性能參數 |
| 參比電壓 | AC220V |
| 工作電壓 | 0.7Un~1.2Un |
| 電流規格 | 5(30)A |
| 額定頻率 | 50Hz |
| 準確度等級 | 有功1.0級 |
| 電壓線路功耗 | ≤1W,5VA |
| 電流線路功耗 | ≤1VA |
| 電能脈衝輸出 | 光耦隔離,集電極開路輸出,脈寬80ms±20ms |
| 最大接線能力 | 6mm |
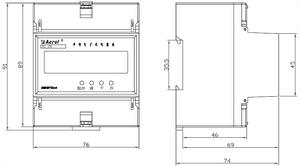
圖7 正視圖 側視圖功能
有功電能計量
電參量測量(U、I、P、Q、S、PF、F)
LCD顯示
按鍵設定
脈衝輸出
復費率
通訊
| 參比電壓 | AC220V |
| 電流規格 | 10(60)A |
| 參比頻率 | 50Hz |
| 精度等級 | 1.0級 |
| 起動電流 | 0.004Ib |
| 環境條件 | 工作溫度:-20℃~60℃存貯溫度:-30℃~70℃ |
| 相對濕度 | ≤95%(無凝露) |
| 正常工作電壓範圍 | 0.7Un ~1.2Un |
| 時鐘精度 | ≤0.5s/d |
| 功耗 | 電壓線路有功功率≤1.0W,視在功率≤5.0VA,電流線路視在功率≤2VA |
| 最大接線能力 | 16 mm |
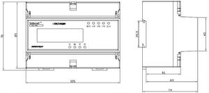
圖8 正視圖 側視圖功能
● 計量
計量單相有功總電能,反向計入總電能並單獨累計
● 測量
測量單相電壓、電流
● 分時
百年日曆、時間,閏年自動切換,最大可設定3個費率,8時段,時段最小間隔1分鐘
● 結算
電錶記憶體儲3個月的歷史結算數據,電能結算日預設設定為月末24時(月末結算)
● 顯示
7位寬溫型LCD顯示;有功電能脈衝、當前費率LED指示
● 輸出
有功電能脈衝輸出,無源光電隔離型輸出連線埠
● 通訊
支持RS485通訊接口,通訊規約可選(MODBUS-RTU或DL/T645規約)
| 項 目 | 性能參數 |
| 參比電壓 | AC220V |
| 工作電壓 | 0.7Un~1.2Un |
| 電流規格 | 1.5(6)A、5(20)A、10(40)A、20(80)A |
| 額定頻率 | 50Hz |
| 準確度等級 | 有功1.0級 |
| 時鐘準確度 | 日誤差≤0.5s/d |
| 電壓線路功耗 | ≤1W,5VA |
| 電流線路功耗 | ≤1VA |
| 電能脈衝輸出 | 光耦隔離,集電極開路輸出,脈寬80ms±20ms |
| 通訊 | RS485接口,MODBUS-RTU協定(或DL/T645規約) |
| 最大接線能力 | 25mm |
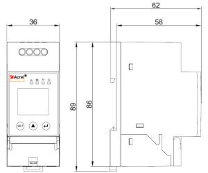
圖9 正視圖 側視圖功能
● 計量
計量總有功電能,反向計入總電能
● 分時
百年日曆、時間,閏年自動切換,最大可設定4個費率,8時段,時段最小間隔1分鐘
● 結算
電錶記憶體儲3個月的歷史結算數據,電能結算日預設設定為月末24時(月末結算)
● 顯示
7位寬溫型LCD顯示;有功電能脈衝、當前費率、分相有電、功率反向LED指示
● 輸出
有功電能脈衝輸出、時鐘脈衝輸出,無源光電隔離型輸出連線埠
● 通訊
支持RS485通訊接口,通訊規約可選(MODBUS-RTU或DL/T645規約)
| 項 目 | 性能參數 |
| 參比電壓 | AC 3×220/380V |
| 工作電壓 | 0.7Un~1.2Un |
| 電流規格 | 1.5(6)A、5(20)A、10(40)A、20(80)A |
| 額定頻率 | 50Hz |
| 準確度等級 | 有功1.0級 |
| 時鐘準確度 | 日誤差≤0.5s/d |
| 電壓線路功耗 | ≤2W,5VA |
| 電流線路功耗 | ≤1VA |
| 電能脈衝輸出 | 光耦隔離,集電極開路輸出,脈寬80ms±20ms |
| 通訊 | RS485接口,MODBUS-RTU協定(或DL/T645規約) |
| 最大接線能力 | 25mm |
圖10 正視圖 側視圖功能
● 計量
計量總的正反向有功和無功電能(4象限電能)
● 測量
測量分相電壓、分相電流、分相及總的有功功率、無功功率和視在功率、分相及總的功率因數、電網頻率
● 需量
有功、無功功率最大需量統計
● 分時
百年日曆、時間,閏年自動切換,最大可設定2個年時區、2套時段表、4個費率,8時段,時段最小間隔1分鐘
● 結算
電錶記憶體儲3個月的歷史結算數據,電能結算日預設設定為月末24時(月末結算)
● 顯示
7位寬溫型LCD顯示;有功電能脈衝、無功電能脈衝、報警、相序、失壓、當前費率LED指示
● 輸出
有功電能脈衝輸出、無功電能脈衝輸出,無源光電隔離型輸出連線埠
● 通訊
支持RS485通訊接口,通訊規約可選(MODBUS-RTU或DL/T645規約)
| 項 目 | 性能參數 |
| 參比電壓 | AC 3×220/380V,AC 3×380V |
| 工作電壓 | 0.7Un~1.2Un |
| 電流規格 | 1.5(6)A、5(20)A、10(40)A、20(80)A |
| 額定頻率 | 50Hz |
| 準確度等級 | 有功0.5級,無功2.0級 |
| 時鐘準確度 | 日誤差≤0.5s/d |
| 電壓線路功耗 | ≤2W,5VA |
| 電流線路功耗 | ≤1VA |
| 電能脈衝輸出 | 光耦隔離,集電極開路輸出,脈寬80ms±20ms |
| 通訊 | RS485接口,MODBUS-RTU協定(或DL/T645規約) |
| 最大接線能力 | 25mm |
安裝方式如圖11:
圖11 安裝方式接線方式
直接接入:又叫一次接入
帶通訊直接接入
三相四線直接接入(1)接入中性點絕緣系統的電能計量裝置,應採用三相三線有功、無功電能表。接入非中性點絕緣系統的電能計量裝置,應採用三相四線有功、無功電能表或3隻感應式無止逆單相電能表。
(2)接入中性點絕緣系統的3台電壓互感器,35kV及以上的宜採用Y/y方式接線;35kV以下的宜採用V/V方式接線。接入非中性點絕緣系統的3台電壓互感器,宜採用Y0/y0方式接線。其一次側接地方式和系統接地方式相一致。
(3)低壓供電,負荷電流為50A 及以下時,宜採用直接接入式電能表;負荷電流為50A以上時,宜採用經電流互感器接入式的接線方式。
(4)對三相三線制接線的電能計量裝置,其2台電流互感器二次繞組與電能表之間宜採用四線連線。對三相四線制連線的電能計量裝置,其3台電流互感器二次繞組與電能表之間宜採用六線連線。
單相經CT接入
三相四線經CT接入選 型
上海ACREL電氣導軌式安裝電能表DTSF1352-FC
計量總有功電能、分時復費率電能,反向計入總電能,有功電能脈衝輸出、時鐘脈衝輸出,RS485通訊接口、Modbus協定,外形尺寸126×89×74mm、7模數,標準35mm導軌式安裝
范 例
型 號:DDSF1352-FC 套用場合:單相系統
接入方式:直接接入
額定電壓:AC 220V
電流規格:5(20)A
測量參數:總電能、分時復費率電能,電流,電壓
附加功能:RS485通信,MODBUS協定
型 號:DTSD1352-FC
套用場合:三相系統
接入方式:二次接入
額定電壓:AC 3*220V/380V
電流規格:1.5(6)A
測量參數:測量分相電壓、分相電流、分相及總的有功功率、無功功率和視在功率、分相及總的功率因數、電網頻率、有功、無功功率最大需量統計、計量總的正反向有功和無功電能(4象限電能)、分時復費率電能
附加功能:RS485通信,MODBUS協定
