基本信息
交通狀況: 21、22、38、510、641、653、658、826、851等多路公交均可直達(牡丹園站下即可)。
軌道交通:10號線
物業類別:公寓
開發商:北京肆維基業房地產開發有限公司
物業公司:北京肆維基業物業管理有限責任公司
物業費:3.98元/月/平米
價格信息
價格說明:待定
歷史價格:
| 價格時間 | 最高價 | 均價 | 最低價 |
| 2012年10月11日 | -- | -- | -- |
| 2012年09月28日 | -- | -- | -- |
| 2012年09月11日 | -- | -- | -- |
樓盤詳情
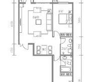
坎城35號戶型圖產權年限:70年
容積率:2.32
綠化率:30
總戶數:400
建築面積:111340平方米
占地面積:62200平方米
配套信息
坎城35號實景圖周邊商業:工商銀行、建設銀行、中國銀行
周邊公園:小月河水景公園、奧林匹克森林公園
周邊醫院:北醫三院
周邊學校:北醫國小、北醫附中、地質大學、電影學院
售賣信息
開盤時間:2012年8月
入住時間:2013年2月
銷售許可證:京房售證字(2011)4號
銷售情況:在售
項目介紹
項目坐擁京都核心貴地,環顧項目周邊,區域內居民主要由國家郵電部、郵電科學院、中國衛星通信公司、國家技術質量監督局、市科委、航天部502所、北大清華等國際一流大學執教人員構成,形成獨特的“人文之國”。城市之中,悠然生活。
坎城35號單棟樓體至高近50米,由北京五豪世紀建築設計有限公司(甲級)設計,整體建築追求西方古典與國際現代風格的有機融合,樓體造型挺拔,局部精雕細膩並富於變化,詮釋理性與感性之美。
周邊配套齊全,學校、醫院藥店、郵局、銀行、酒店、餐飲、購物、文化娛樂一應俱齊,堪稱最具國際化特徵的北京高端成熟生活區。

