簡介
圓形煤場所使用的堆取料機被半球形的煤罐外殼所籠罩,堆取料作業時集中於定心鏇轉的迴轉範圍內,不受颱風等惡劣天氣的影響,同時產生的揚塵範圍小,又被拘囿在固定的區域內,所
設施
圓形堆取料機由堆料機、取料機和中心立柱三部分組成,取料和堆料作業時具備兩個層次分明的堆料迴轉機構和取料迴轉機構,使堆料機和取料機形成兩套互不干涉、相對獨立的運行系統,實現同時進行堆料和取料作業。堆料機由懸臂皮帶堆料機和進料帶式輸送機組成。取料機由刮板取料機、中心錐形料斗、出料帶式輸送機組成。進料皮帶鋼結構棧橋的終端跨在圓形堆取料機的中心立柱的頂部,懸臂堆料機通過堆料迴轉機構繞著中心立柱作定心鏇轉;取料刮板機是由橫跨在圓形料場的半門架結構所支撐,固這種取料機也稱門架式取料機,門架的另外一端支撐在安裝於圓形料場的擋牆上部的圓周軌道上,通過台車組實現驅動迴轉,因此,門架式取料機也是通過取料迴轉機構繞著中心立柱作定心鏇轉。圓形堆取料機的粉塵產生及防治
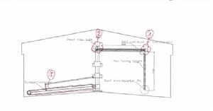
圓形堆取料機在刮板取料,轉載點及皮帶堆料時都有可能產生較大的粉塵(如下圖),需呀採取相應的措施對其進行防治。
針對刮板取料,轉運及落料時,比較常用的是噴霧降塵,也可以配合除塵器一起使用。針對堆料時落料產生的粉塵問題,目前國際上最先進的辦法是採用無塵伸縮溜槽,比較先進的產品是HENNLICH伸縮溜槽,可以在不使用噴水的情況下解決落煤產生的粉塵問題,並且不增加煤的濕度,達到業主對煤炭濕度的要求。

