基本信息
社區實景行政區域: 汊河
項目位置: 滁州市來安縣汊河經濟開發區104國道旁與南京江北高新區一河之隔
交通狀況: 捷運3號線林場站8公里
建築類型: 獨棟別墅,雙拼,聯排
物業類別: 別墅
主力戶型: 120-200平米
開發商: 來安香江置業有限公司
詳細信息
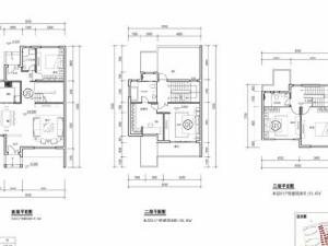
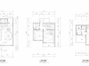
戶型圖產權年限: 70年
產權類型: 大產權房
容積率: 0.4
綠化率: 43.5%
總戶數: 388
建築面積: 78000平方米
占地面積: 230000平方米
價格信息
南京灣錦繡香江價格:均價4700元/平米
售賣信息
售樓處售樓地址: 南京市廣州路189號民防大廈1層(與寧海路交匯處)
售樓電話: 400-606-6969轉78812
開盤時間: 預計2012年9月初公開樣板間,9月底開盤
入住時間: 預計2014年
項目介紹
戶型圖南京灣項目為香江地產旗下超大型綜合體項目,整體規劃占地約30000畝,建築面積約3000萬平方米,該項目由商貿產品(全球家居CBD)及住宅產品(錦繡香江)組成。項目地處南京北汊河經濟開發新區,與南京江北高新區僅僅一河之隔,104國道貫穿新區,距南京捷運3號線林場站8公里、南京長江大橋15公里、南京新街口30公里,屬於南京1小時都市生活圈,共享板塊內1000億資源配套。
南京灣•錦繡香江整體規劃約300萬平方米,產品規劃將涵蓋別墅、多層、小高層和高層等多種物業形態。錦繡香江一期啟動區為別墅社區,富有地中海風情的四聯排、雙拼別墅,圍繞在近6000平米中心水景四周,配合精緻的南派造林手法,為業主提供獨具風情的居住體驗。

