項目介紹
項目介紹周邊約2萬㎡的園林景觀,6400㎡高端商務中心,雙主入口、雙迎賓樓,1:3的車位比。水地暖、新風系統、自動除濕系統、進口國際頂級品牌櫥櫃、衛浴、潔具、電器、迅達S7000高速電梯。
周邊配套
區點陣圖戶型預覽
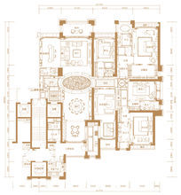
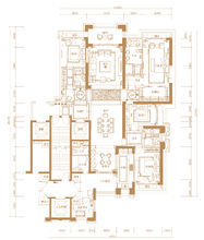
戶型A(313㎡)
戶型B(482㎡)
凱旋1號位於南寧,由來自法國的開發商南寧大西洋置業有限公司開發的精裝平層大宅。凱旋1號榮膺“2016年亞洲10大超級豪宅”。
項目介紹
區點陣圖
戶型A(313㎡)
戶型B(482㎡)交通便利,周圍設施齊全,有投資價值,地理環境優秀。
百科概述 小區信息 詳細信息 周邊配套“東方凱旋城”商住小區位於福州北路1號,規劃用地面積44829平方米,總建築面積89524.31平方米,總計744戶,綠化率33.6%,容積率1.84,...
中海凱旋位於未來中國金融管理中心“北京金融一條街”東側一街之隔,同時與西單商業中心相鄰,屬於北京內城區長安街邊的古老而又現代的成熟居住社區,周邊教育、醫...
基本信息 小區介紹 詳細交通信息 周邊配套項目介紹:東方凱旋城位於淮安經濟開發區海口路以北、福州路以東。 規劃總建築面積約82500㎡。 東方凱旋城以8萬平米的總體量,在新城核心區域盡心打造屬於...
項目介紹: 項目詳情: 周邊配套: 項目位置:廣州凱旋酒店,位於天河區黃埔大道西,是一所三星級的商務酒店。
廣州凱旋酒店介紹 廣州凱旋酒店地理位置 廣州凱旋酒店附近酒店 廣州凱旋酒店其他服務"“凱旋車”微型潛艇
簡介 戰鬥套用 偷襲亞歷山大港竣工日期:2003-11 容積率:1.1 公交:旗艦凱旋小區西門B通11
基本信息 小區介紹 周邊配套華潤凱旋天地位於中環路錦繡大道段,緊鄰首條環形捷運線——成都捷運七號線獅子山站口,是華潤2014年全新街區都匯綜合體——華潤凱旋天地。
項目配套 交通狀況 建材裝修 樓層狀況 車位信息