相關詞條
-
檻
漢語漢字,拼音:jiàn kǎn。字從木從監,監亦聲。“監”指“監視”。“木”與“監”聯合起來表示“木製的用於監視、觀察的設施或器具”。本義:監視用途的...
基本字義 詳細字義 古籍解釋 建築學名詞 -
檻中黑蝶
彩雲國物語中人物
出處 小說概要 作者簡介 -
桎檻
桎檻(桎檻),囚禁,囚於檻車。
漢字解釋 -
攀檻
”上大怒,曰:“小臣居下訕上,廷辱師傅,罪死不赦。 雲攀殿檻,檻折。 ”朱雲答道:“安昌侯張禹。
基本信息 典源 釋義 同源典故 示例 -
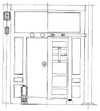
檻窗
檻窗,是安裝在檻框上的窗子,上半部和隔扇一樣,有格心和絛環板。下半部去掉裙板,是磚砌的短牆,也有是木質的板壁。檻窗是由框線、隔心、裙板和絛環板這些基本構...
簡介 基本構造和飾件 製作、安裝的要求 -
折檻
時。” 元 宇文虛中 《古劍行》:“嶙峋折檻霽天威,將軍拜伏奸臣泣...,罪死不赦。」御史將雲下,雲攀殿檻,檻折。雲呼曰:「臣得下從龍逄、比干游...以死爭。」慶忌叩頭流血。上意解,然後得已。及後當治檻,上曰:「勿易!因而...
基本信息 典源 釋義 同源典故 示例 -
鐵檻寺
鐵檻寺:《紅樓夢》中賈府停靈辦喪之地,主持是色空。《紅樓夢》描寫秦可卿大出殯,寄放棺槨的地點在鐵檻寺。書中寫道:"早有前面法鼓金鐃,幢幡寶蓋:鐵檻寺接靈...
《紅樓夢》中相關章節 鐵檻寺水月庵考 -
檻穽
檻穽 亦作“ 檻阱 ”。 1.捕捉野獸的機具和陷坑。 2. 喻人世間的陷阱、牢籠。
拼音 注音 解釋

