Q941F四通四密封電動球閥
Q941F四通四密封電動球閥套用規範
1、設計、製造 按GB12237-892、結構長度按 SDV-2002
3、連線法蘭:JB79-94
4、閥門檢查和試驗按GB13927-89
適用範圍
城建、化工、冶金、石油、製藥、食品、飲料、環保結構
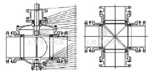
Q941F四通四密封電動球閥結構圖1
Q941F四通四密封電動球閥結構圖2
Q941F四通四密封電動球閥結構圖3該四通球閥,一閥實現正反供水切換,每轉90°,供水方式切換一次,以前需四個閥門,供水時閥1、4開啟,閥2、3關閉;反向供水時閥2、3開啟,閥1、4關閉,現用一台四通球閥替代,操作方便。
主要零件材料
公稱通徑DN 150 20x150 200 250x200 250 300x250 300 350x300 350 400x350 400 450x400 450 500x450 500 600x500 600球孔d1 150 150 200 200 250 250 300 300 350 350 400 400 450 450 500 500 600
L 570 570 670 670 760 760 850 850 980 980 1080 1080 1220 1220 1360 1360 1750
H 219 219 273 273 360 360 395 395 430 430 470 470 550 550 580 580 700
手動 H1 330 330 398 398 495 495 580 580 625 625 670 670 698 698 840 840 1050
E - - 116 116 1169 116 171 171 171 171 257 257 257 257 257 257 150
F - - 350 350 350 350 400 400 420 420 400 400 420 420 400 400 410
W 1050 1050 600 600 600 600 800 800 800 800 800 800 800 800 800 800 800
電動 H2 554 554 600 600 652 652 760 760 770 770 830 830 - - 940 940 1020
L1 235 235 235 235 235 235 259 259 400 400 400 400 - - 410 410 410
氣動 H3 666 666 735 736 926 926 1059 1059 1127 1127 1393 1393 1468 1468 1538 1538 1370
L2 776 776 776 776 776 776 1060 1060 1060 1060 1360 1360 1360 1360 1360 1360 2840
PN1.6 MPa主要連線尺寸及重量
公稱通徑DN 150 20x150 200 250x200 250 300x250 300 350x300 350 400x350 400 450x400 450 500x450 500 600x500 600
球孔d1 150 150 200 200 250 250 300 300 350 350 400 400 450 450 500 500 600
L 570 570 670 670 760 760 850 850 980 980 1080 1080 1220 1220 1360 1360 1750
H 219 219 273 273 360 360 395 395 430 430 470 470 550 550 580 580 700
手動 H1 330 330 398 398 495 495 580 580 625 625 670 670 698 698 840 840 1050
E - - 116 116 1169 116 171 171 171 171 257 257 257 257 257 257 150
F - - 350 350 350 350 400 400 420 420 400 400 420 420 400 400 410
W 1050 1050 600 600 600 600 800 800 800 800 800 800 800 800 800 800 800
電動 H2 554 554 600 600 652 652 760 760 770 770 830 830 - - 940 940 1020
L1 235 235 235 235 235 235 259 259 400 400 400 400 - - 410 410 410
氣動 H3 666 666 735 736 926 926 1059 1059 1127 1127 1393 1393 1468 1468 1538 1538 1370
L2 776 776 776 776 776 776 1060 1060 1060 1060 1360 1360 1360 1360 1360 1360 2840
