球閥介紹
電動不鏽鋼球閥找上海博球球閥的主要特點是本身結構緊湊,易於操作和維修,適用於水、溶劑、酸和天然氣等一般工作介質,而且還適用於工作條件惡劣的介質,如氧氣過氧化氫,甲烷和乙烯等。球閥閥體可以是整體的,也可以是組合式的。 本類閥門在管道中一般應當水平安裝。上海博球閥門製造有限公司不鏽鋼球閥分類:不鏽鋼氣動球閥,不鏽鋼電動球閥,不鏽鋼手動球閥。
說明書
範圍
本說明書適用於法蘭連線端的電動(或氣動)球閥。
組成
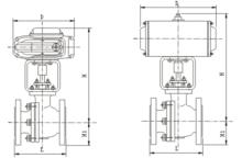
由電動(或氣動)執行機構(20)與球閥閥體部分組成,其連線靠支架(18)和連線軸(17)。
使用限制
溫度和壓力限制 l 銘牌顯示有球閥在最大和最小操作溫度下所允許的最大操作壓力。 l 使用PTFE或RTFE材質的閥座和密封件,操作溫度應在-290C到 2000C之間。其他類型的閥座和密封件的操作溫度,應受到KI工廠的檢核。 l 閥的公稱壓力等級 (PN),可表明閥在正常溫度狀態下的最大工作壓力。(例如:PN4.0,表明其操作溫度在-290C~380C時的最大工作壓力為40 Bar(4.0MPa))。 l 電動或氣動執行器的注意事項參見其相應的說明書。 1)、取掉法蘭端兩邊的保護蓋,在閥完全打開的狀態下進行沖洗清潔。 2)、安裝前應按規定的信號(電或氣)進行整機測試(防止因運輸產生振動影響使用性能),合格後方可上線安裝(接線按電動執行機構線路圖)。 3)、準備與管道連線前,須沖洗和清除乾淨管道中殘存的雜質(這些物質可能會損壞閥座和球)。 4)、在安裝期間,請不要用閥的執行機構部分作為起重的吊裝點,以避免損壞執行機構及附屬檔案。. 5)、本類閥應安裝在管道的水平方向或垂直方向。 6)、安裝點附近的管道不可有低垂或者承受外力的現象,可以用管道支架或者支撐物來消除管線的偏離。 7)、與管道連線後,請用規定的扭矩交叉鎖緊法蘭連線螺栓。
操作和使用
1)、操作前須確認管路和閥已被沖洗過。 2)、閥的操作按執行機構輸入信號大小帶動閥桿旋轉完成:正向旋轉1/4圈(900)時,閥關斷。反向旋轉1/4圈(900)時,閥開啟。 3)、當執行機構方向指示箭頭與管線平行時,閥門為開啟狀態;指示箭頭與管線垂直時,閥門為關閉狀態。
維修
擁有較長的使用壽命和免維修期,將依賴以下幾個因素:正常的工作條件、保持和諧的溫度/壓力比,以及合理的腐蝕數據 注意: ●球閥在關閉狀態下,閥體內部依舊存在受壓流體 ●維修前,解除管線壓力並使閥門處於打開位置 ●維修前,斷開電源或氣源 ●維修前,將執行機構與支架脫離 1)、填料處得再鎖緊 l 若填料涵處有微泄發生,須再鎖緊閥桿螺母 (13). l 注意不要鎖太緊,通常再鎖1/4圈~1圈,泄露即會停止。 2)、更換閥座和密封件. A)、拆卸 l 使閥處於半開位置,沖洗、清除閥體內外可能存在的危險物質. l 關閉球閥,拆掉兩邊法蘭上的連線螺栓和螺母,然後將閥由管線上完全移除。 l 依序拆卸驅動裝置-執行機構(20)、連線支架(18)、、防松墊圈(14)、閥桿螺母(13)、蝶形彈片(12)、格南(11) 、耐磨片(10)、閥桿填料(9) l 拆卸體蓋連線螺栓(5)和螺母,將閥蓋與閥體分離,並拿掉閥蓋墊圈(16)。 l 確認閥球(3)在“關斷”位置,這可以將其較容易的從閥體拿出,隨後取出閥座。 l 由閥體中孔向下輕推閥桿(6)直到完全取出,然後取出O型圈(8)及閥桿下填料(7) 注意:請謹慎操作,以避免擦傷閥桿表面及閥體填料函密封部位 B)、重新組裝 l 清洗和檢查拆下零件,強烈推薦用備用零件包更換其閥座及閥蓋墊圈等密封件 l 按拆卸的相反順序進行組裝。 l 用規定的扭矩,交叉鎖緊法蘭連線螺栓(5)。 l 用規定的扭矩,鎖緊閥桿螺母(13) l 安裝執行機構後,輸入相應的信號通過旋轉閥桿帶動閥芯旋轉,使閥門至打開和關閉位置。 l 如有可能,請在回裝管道前,按相關標準對閥進行壓力密封測試和性能測試。 型號表示方法: 像之前的閥門Q11S-16C這種當中"S”表示是比較老的方法,"S"代表塑膠密封付.現在用"F"表示.代表四氟或聚四氟材料
電動不鏽鋼球閥結構圖尺寸表
| 公稱通徑DN(mm) | 尺寸(mm) | ||||||
| L | D | D1 | D2 | b | f | Z-Φd | |
| 15 | 108 | 95 | 65 | 45 | 14 | 2 | 4-14 |
| 20 | 117 | 105 | 75 | 55 | 14 | 4-14 | |
| 25 | 127 | 115 | 85 | 65 | 14 | 4-14 | |
| 32 | 140 | 135 | 100 | 78 | 16 | 4-18 | |
| 40 | 165 | 145 | 110 | 85 | 16 | 3 | 4-18 |
| 50 | 178 | 160 | 125 | 100 | 16 | 4-18 | |
| 65 | 190 | 180 | 145 | 120 | 18 | 4-18 | |
| 80 | 203 | 195 | 160 | 135 | 20 | 8-18 | |
| 100 | 305 | 215 | 180 | 155 | 20 | 8-18 | |
| 125 | 256 | 245 | 210 | 185 | 22 | 8-18 | |
| 150 | 394 | 280 | 240 | 210 | 24 | 8-23 | |
| 200 | 457 | 335 | 295 | 265 | 26 | 12-23 | |
| 250 | 533 | 405 | 335 | 320 | 30 | 12-25 | |
註:各規格所配執行機構因工藝參數不同會有變化。

