處理原理
利用隔油池與沉澱池處理廢水的基本原理相同,都是利用廢水中懸浮物和水的比重不同而達到分離的目的。隔油池的構造多採用平流式,含油廢水通過配水槽進入平面為矩形的隔油池,沿水平方向緩慢流動,在流動中油品上浮水面,由集油管或設定在池面的刮油機推送到集油管中流入脫水罐。在隔油池中沉澱下來的重油及其他雜質,積聚到池底污泥斗中,通過排泥管進入污泥管中。經過隔油處理的廢水則溢流入排水渠排出池外,進行後續處理,以去除乳化油及其他污染物。
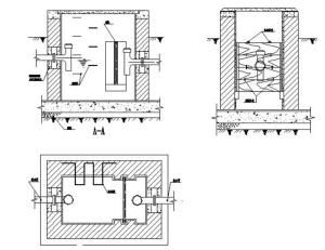
隔油池多用鋼筋混凝土築造,也有用磚石砌築的 在矩形平面上,沿水流方向分為2~4格,每格寬度一般不超過6米,以便布水均勻。有效水深不超過2米,隔油池的長度一般比每一格的寬度大 4倍以上。隔油池多用鏈帶式的刮油機和刮泥機分別刮除浮油和池底污泥。一般每格安裝一組刮油機和刮泥機,設一個污泥斗。若每格中間加設檔板,擋板兩側都安裝刮油機和刮泥機,並設污泥斗,則稱為兩段式隔油池(見圖[兩段式隔油池] ),可以提高除油效率,但設備增多,能耗增高。若在隔油池內加設若干斜板,也可以提高除油效率,但建設投資較高。在寒冷地區,為防止冬季油品凝固,可在集油管底部設蒸汽管加熱。隔油池一般都要加蓋,並在蓋板下設蒸汽管,以便保溫,防止隔油池起火和油品揮發,並可防止灰沙進入。
隔油是自然浮上分離裝置,常用的隔油池有:平流式隔油池(API油分離器),平行板式隔油池(PPI油分離器)和傾斜板式隔油池(CPI油分離器)。隔油池的出水油含量一般小於50 mg/L
懸浮狀態
隔油池圖片圖廢水中油品比重一般比水小,多以三種狀態存在:①懸浮狀態:油品顆粒較大,油珠直徑0.1毫米以上,漂浮水面,易於從水中分離。在石油工業中,這類油品約占廢水含油量的60~80%。②乳化狀態:油品的分散粒徑小,油珠直徑在0.1毫米以下,呈乳化狀態,不易從水中上浮分離。這類油品約占廢水油含量的10~15%。③溶解狀態:石油在水中溶解度極小,溶於水的油品占廢水含油量的0.2~0.5%。
性能比較
API,PPI和CPI隔油池性能比較
項 目 API型 PPI型 CPI型
除油效率 / % 60 ~ 70 70 ~ 80 70 ~ 80
處理量相同時的占地面積 1 1/2 1/3 ~ 1/4
可能除去的最小油滴直徑 /μm 100 ~ 150 60 60
最小油滴的浮上速度 /(mm·s-1) 0.9 0.2 0.2
安裝參數
安裝示意圖及參數參考小型排水構築物圖集(建設163號)
| 型號 | 體積(m) | 槽寬B(mm) | 槽長L(mm) |
| HZSB-1 | 3 | 2200 | 2350 |
| HZSB-2 | 6 | 2200 | 3600 |
| HZSB-3 | 9 | 2200 | 4850 |
| HZSB-4 | 12 | 2200 | 6100 |
| HZSB-5 | 16 | 2900 | 4300 |
| HZSB-6 | 20 | 2900 | 6300 |
| HZSB-7 | 25 | 2900 | 7300 |
| HZSB-8 | 30 | 3400 | 6100 |
| HZSB-9 | 40 | 3400 | 7600 |
| HZSB-10 | 50 | 3400 | 9100 |
| HZSB-11 | 60 | 3400 | 10600 |
| HZSB-12 | 75 | 3740 | 10600 |
| HZSB-13 | 100 | 3740 | 13600 |
安裝說明
隔油池安裝示意圖隔油池產品需直接安裝在含有污水、油水流經的通道上,把污水出口對準油水分離器帶格欄的進口即可,與其他設備可用管道連線。
安裝時必須將油水分離器(隔油池)調整到水平位置。
第一次使用前應把設備註滿自來水,調節水位調節管,使水位調節管的頂部與溢油槽上邊緣處於同一水平面進水管的位置應與雜物分離箱保持一定的距離,以方便將雜物分離箱取出為宜。
通入含油廢水,再次調節水位調節管,直到排油管只排油不排水即可。
如果排油管位置過低,可將設備蓋板打開,用工具將油取出。
設計依據
1、食堂及餐廳的含油污水,應經除油裝置後方許排入污水管道。
2、污水流量應按設計秒流量計算。
3、含食用油污水在池內的流速不得大於0.005m/s。
4、含食用油污水在池水的停留時間為2~10min。
5、人工除油的隔油池記憶體油部分的容積不得小於該池有效容積的25%。
6、隔油池應設活動蓋板。進水管應考慮有清通的可能。
7、隔油池出水管管底至池底的深度,不得小於0.6m。
方式分類
主要是分自動隔油器和重力式隔油池,但是擺放方式和材質不同分為,地埋式玻璃鋼隔油池。和地上的玻璃鋼隔油池,還有就是不鏽鋼隔油池 。還有鋼筋混凝土結構的

