一、產品概述
細燃油過濾器是籃式過濾器的一種,是從流體中分離固體顆粒雜質,提高產品純度,保護設備(壓縮機、泵、儀表等)安全工作的產品,是輸送介質管道上不可缺少的一種裝置,通常安裝在減壓閥、泄壓閥、定水位閥或其它設備的進口端,用來消除介質中的雜質,以保護閥門及設備的正常使用。
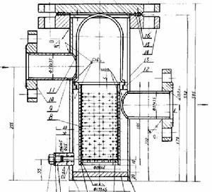
細燃油過濾器結構簡圖二、工作原理
細燃油過濾器主要由接管、主管、濾藍、法蘭、法蘭蓋及緊固件等組成。當流體進入置有一定規格濾網的濾筒後,其雜質被阻擋,而清潔的濾液則由過濾器出口排出,當需要清洗時,只要將可拆卸的濾筒取出,處理後重新裝入即可,因此,使用維護極為方便。
三、技術參數
1、工作溫度(℃):碳鋼:-30~380℃,不鏽鋼:-80~450℃。
2、工作壓力(MPa):-0.6~5.0MPa
3、殼體材質:A3、SS304、SS304L、SS316、SS316L、襯PP、H62等。
4、密封材質:耐油石棉橡膠、丁睛橡膠、聚四氟乙烯。
5、粗過濾濾芯材質:濾框、濾網均為不鏽鋼。
6、精過濾濾芯材質:鈦合金燒結濾芯、不鏽鋼摺疊濾芯、聚四氟摺疊濾芯、聚丙烯摺疊濾芯、金屬纖維燒結管氈、陶瓷。
四、規格尺寸
| 公稱通徑DN | ф | L | H1 | H2 | H3 | 有效過濾面積(m2) | 參考重量(kg) |
| 25 | 76 | 220 | 110 | 70 | 280 | 0.003619 | 15.7 |
| 32 | 76 | 220 | 110 | 70 | 285 | 0.003619 | 19.2 |
| 40 | 114 | 280 | 120 | 100 | 340 | 0.005718 | 23.6 |
| 50 | 114 | 280 | 120 | 100 | 340 | 0.005718 | 28.9 |
| 65 | 140 | 330 | 160 | 110 | 400 | 0.009613 | 48.4 |
| 80 | 168 | 340 | 180 | 140 | 460 | 0.01539 | 65.3 |
| 100 | 219 | 420 | 220 | 170 | 550 | 0.02464 | 126.3 |
| 150 | 273 | 500 | 310 | 220 | 720 | 0.04866 | 248.0 |
| 200 | 325 | 560 | 390 | 280 | 900 | 0.07858 | ​ |
| 250 | 426 | 660 | 480 | 320 | 1070 | 0.12005 | ​ |
| 300 | 478 | 750 | 640 | 400 | 1360 | 0.16537 | ​ |
五、適用範圍
1.細燃油過濾器是為過濾重油中的機械雜質及炭粒等,防止對泵及噴嘴產生堵塞,磨損以保護設備的正常運轉;
2.設計人員應該按油的品質,油泵的形式選擇細燃油過濾器;
3.細燃油過濾器一般安裝在燃油加熱器後及噴嘴前或者供油泵前。
六、濾網規格表
| 目數/inMesh/in | 孔數/inHole/in | 可截粒徑Particle Dia(u) | 絲 徑Wire Dia(mm) | 有效過濾面積%Effective filtrate Area |
| 10 | 100 | 2023 | 0.02000(0.510) | 64 |
| 20 | 400 | 955 | 0.01240(0.315) | 58 |
| 30 | 900 | 614 | 0.00921(0.224) | 54 |
| 40 | 1600 | 442 | 0.00760(0.206) | 48 |
| 50 | 2500 | 365 | 0.00598(0.512) | 46 |
| 60 | 3600 | 301 | 0.00480(0.122) | 44 |
| 80 | 6400 | 216 | 0.00402(0.102) | 42 |
| 100 | 10000 | 173 | 0.00310(0.081) | 40 |
七、維護保養
1、細燃油過濾器的核心部位是過濾器芯件,過濾芯由過濾器框和不鏽鋼鋼絲網組成,不鏽鋼鋼絲網屬易損件,需特別保護;
2、當細燃油過濾器工作一段時間後,過濾器芯內沉澱了一定的雜質,這時壓力降增大,流速會下降,需及時清除過濾器芯內的雜質。
