簡介
洗氨塔(ammonia serubber)是指水洗氨法回收氨的主要設備之一。圓筒形的洗氨塔分為空噴式洗氨塔和填料式洗氨塔兩種類型。
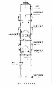
空噴式洗氨塔
下部為有弓形隔板的冷卻段,上部為有多層噴射式噴嘴的洗氨段(圖1)。煤氣從冷卻段下部進入,經洗氨段頂部排出。吸收液通過噴嘴噴入洗氨段,呈微小滴狀。與煤氣接觸以氣液傳質的方式吸收氨。空噴塔結構簡單,易於製造,清掃方便,阻力小,生產能力大。但電能消耗大,操作費用高,噴嘴易堵。
洗氨塔 填料式洗氨塔
是套用較早、較廣的一種塔型(圖2)。選用木格、鋼板網、金屬螺旋或塑膠花環等作為塔內填料。從塔頂噴灑洗滌水,填料層持液量較大,因此吸收液與煤氣接觸時間長,加之煤氣激烈的湍動,吸收表面不斷更新,增加了吸收效率。為保證洗滌水在塔的橫斷面上均勻分布,在塔內每隔一定即離安裝一塊氣液分布器。木格和鋼板網填料生產能力小,材料耗量大,已逐漸被塑膠花環填料所代替。
洗氨塔 
