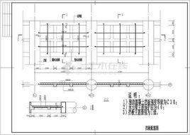
簡介
板樁,防護樁的一種,其形狀長而扁,可用於低邊坡、基坑等的防護。一般採用強夯的辦法打入。板樁能夠延長滲徑,減少滲透坡降,在水利水電施工中,板樁一般設在需防滲建築物上游側,一般設在沙性土中。懸壁式板樁牆是指板樁下部的被動壓力來承受牆背后土壓力的板牆。懸臂式板樁牆一般適合於擬建場地的土質情況較好,施工點周圍不存在沉陷問題(不考慮周圍建築物的影響時)。一般多用於開挖深度小於3-5m的小開挖。
設計
力的傳遞
( 1) 邊坡土壓力傳向簡支橫向板。採用庫侖土壓力理論計算。
( 2) 簡支橫向板壓力傳向支樁。 沿高度分段計算, 簡化為承受均布荷載,採用鋼筋混凝土簡支構件計算內力及配筋。
( 3) 支柱壓力傳向樁。 沿高度承受三角形荷載,採用鋼筋混凝土懸臂構件計算支柱的內力、配筋及柱頂的水平位移。
( 4) 樁承受支柱傳來的壓力。 為支柱提供固端約束,承受支柱傳來的彎矩、剪力和軸力,並承受土體的主動土壓力和被動土壓力,根據水平力作用計算樁的內力和配筋,並確定樁的入土深度,驗算提供固端約束的條件 。
土壓力的計算
土壓力的大小和牆後填土的性質、牆背傾斜方向等因素有關。 庫侖土壓力理論是根據牆后土體處於極限平衡狀態並形成一滑動契體時,從契體的靜力平衡條件得出的土壓力計算理論。庫侖土壓力理論假設牆後填土是理想的散體,也就是填土只有內摩擦角 φ而沒有內聚力 c,因此理論上只適用於無粘性填土,在實際工程中常採用粘性土回填,為了考慮粘性土的內聚力 c對土壓力數值的影響,在套用庫侖理論時,常將內摩擦角 φ增大,採用等值內摩擦角 φ=30 ° ~ 35 ° 。 另外,庫侖理論假設牆後填土破壞時破裂面是一平面,而實際卻是一曲面, 在主動土壓力時,只有當牆背的斜度不大,牆背與填土的摩擦角較小時,破裂面才接近於一個平面,因此計算結果與按曲面滑動面計算的有出入,計算主動土壓力時偏差不大,一般在 2%~ 10%,計算被動土壓力時,誤差較大,有時可達 2~ 3 倍,甚至更大。 在土壓力的計算中,計算參數的正確選擇與否,對計算結果影響很大,砂土的內摩擦角的一般取值細砂在 20° ~ 30 ° ;中砂在 30° ~ 40 ° ;礫石、卵石、粗砂在 40 °~ 45 ° 。 填土與牆背的摩擦角 δ隨牆背的粗糙度、填料的性質、有無地面荷載、排水條件等因素而變化, 牆背愈粗糙,δ愈大;填土的 φ值愈大,δ也愈大。 δ還與超載的大小和填土面的傾角 β 成正比。 一般 δ在 0~ φ之間。
土壓力
土體作用在擋土建築物上的側向壓力。它由土的自重及土面上的荷載所引起。土壓力分為主動土壓力和被動土壓力。土體使擋土建築物移動的橫向推力稱為主動土壓力;阻止建築物移動的土抗力稱為被動土壓力。土壓力的大小與土的重度、內摩擦角、粘結力、密實度、土面上的荷載、填土方法和順序以及土面輪廓狀態等因素有關。土壓力計算是個複雜的問題,設計中多採用簡化的計算方法,即古典土壓力理論(庫倫理論和朗金理論)。實驗證明,對於剛性擋土牆,庫論理論的計算結果與實際情況比較接近。土壓力是重力式碼頭建築物的主要設計荷載之一。為減少土壓力,可在擋土牆後設定減壓稜體或卸荷板等。

