簡介
建築防潮是採用建築方法防止建築物受潮的技術措施。包括:
①為了防止潮氣和地面下滲水對建築物牆體、地面等部位的侵蝕而採取一種措施。通常採取設定防潮層的方式。可用防水砂漿、防水混凝土、防潮塗料、卷材等作為防潮層材料。
②減少蒸汽滲透,防止水蒸氣在結構內部或圍護結構表面結露的措施。一般可採用增大圍護結構熱阻、採用呼吸性內飾面、使用隔蒸汽層、作表面防水層、增設通風排汽通道等。
地面防潮
地面防潮,主要是防止地面的潮氣。
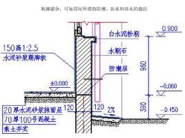
情況一:水平防潮層一般應在室內地面不透水墊層(如混凝土)範圍以內,通常在 -0.060m 標高處設定,而且至少要高於室外地坪 150mm ;
情況二:當地面墊層為透水材料(如碎石、爐渣等)時,水平防潮層的位置應平齊或高於室內地面一皮磚的地方,即在 +0.060m 處;
情況三:當兩相鄰房間之間室內地面有高差時,應在牆身內設定高低兩道水平防潮層,並在靠土壤一側設定垂直防潮層,將兩道水平防潮層連線起來,以避免回填土中的潮氣侵入牆身。
1)油氈防潮層:在防潮層部位先抹 20mm 厚 M5 的水泥砂漿找平層,然後乾鋪油氈一層或用熱瀝青貼上油氈一層,油氈的寬度應與牆厚一致或稍大一些,油氈沿牆的長度鋪設,搭接長度大於 l00mm 。
2)防水砂漿防潮層:在防潮層位置抹一層 20~25mm 厚摻 3%~5% 防水劑的 1:3 水泥砂漿或用防水砂漿砌築 4~6 皮磚。
3)細石混凝土防潮層:在防潮層位置鋪設 60mm 厚 C20 細石混凝土,內配 3φ6 或 3φ8 的縱向鋼筋和 φ4@250 的橫向鋼筋。
牆身防潮
作用
(防潮層是用來阻隔水汽的)
防止土壤中的水分沿基礎上升,以免位於勒腳處的地面水滲入牆內而導致牆身受潮,可以提高建築物的耐久性,保持室內乾燥衛生。在構造形式上有水平防潮層和垂直防潮層兩種形式。
位置
1)防雨水濺濕牆身;
2)當地面墊層為不透水材料(如混凝土)時,水平防潮層應設在-0.060處。如果此處有地梁的話,可以不設。防潮層就是在砌築牆體(外牆)的時候,在±0.000以下(一般是-0.060的位置)鋪築一層防水砂漿。其作用是防止室外潮氣進入室內,它和±0.000以下的外牆防水砂漿、散水,形成一個封閉的防潮系統。
3)當地面墊層為透水材料 (如碎石、爐渣等) 時,水平防潮層的位置應平齊或高於室內地面一皮磚的地方,即在+0.060m 處;
4)當兩相鄰房間之間室內地面有高差時,應在牆身內設定高低兩道水平防潮層,並在靠土壤一側設定垂直防潮層,將兩道水平防潮層連線起來,以避免回填土中的潮氣侵入牆身。
做法
1)防水砂漿防潮層:它適用於抗震地區、獨立磚柱和震動較大的磚砌體中,其整體性較好,抗震能力強,但砂漿是脆性易開裂材料,在地基發生不均勻沉降而導致牆體開裂或因砂漿鋪貼不飽滿時會影響防潮效果。
2)細石混凝土防潮層:它適用於整體剛度要求較高的建築中,但應把防水要求和結構做法合併考慮較好。
3)用鋼筋混凝土基礎圈樑代替防潮層。
4)垂直防潮層的做法:在需設垂直防潮層的牆面(靠回填土一側)先用 1:2 的水泥砂漿抹面,15~20mm 厚,再刷冷底子油一道,刷熱瀝青兩道;也可以直接採用摻有 3%~5 % 防水劑的砂漿抹面 15~20 厚的做法。

