垂直度測量儀
垂直度測量儀是運用氣浮原理實現精密導向的精密儀器,其主要用於如下幾個方面的測量:
1)檢測尺寸500mm內的00級、0級、1級、2級的各種類型直角尺的垂直度,以及被測面的直線度;
2)檢測尺寸至500×500mm方箱的各個工作面相互垂直度和平行度;
3)檢測0-500mm範圍內高精度的機械零件的垂直度。
這種儀器具有測量精度高、性能穩定、操作及維護方便的優點,但是由於技術難度較大,國內幾乎沒有生產,只有幾家公司在做,目前主要是已開發國家在生產。由於國外產品售價高,在我們國內沒有得到普及推廣。國內在檢測垂直度方面主要還是使用傳統的檢測方法,比如光隙法、手動打表法等,這些方法操作過程比較繁瑣,檢測效率也比較低。
結構原理
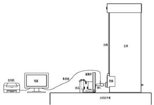
儀器包括導向裝置、測量裝置、驅動裝置、氣源控制裝置、輔助夾具、電腦等。
如何使用
儀器主要是運用氣浮與真空吸附原理進行測量的,在測量的過程中都必須有氣體作潤滑,所以開機後系統會對氣路氣壓進行檢測。當氣壓處在設定的範圍內時電機才能開始工作,否則系統蜂鳴器就會報警,電機無法啟動。滑台上下移動過程中,真空吸附滑台的正負壓氣路均要打開。使用前滑台的初始位置位於最低位置處(此時測頭距離大理石平板表面約10mm)。以下是具體使用方法。單個測量面器具
- 按下底部氣浮按鈕,使主體浮起,然後將測量儀移動到基準工作檯合適的位置,鬆開按鈕使主體底部與基準工作檯面接觸;
- 儀器復位(測頭距離基準工作檯面約10mm處);
- 調整被檢器具位置使其被測量面與測頭相接觸,當測頭示值(通過TT20顯示盒可以看到示值)接近零時,使測頭讀數清零;
- 在軟體界面上輸入被檢器具的相關信息(如直角尺類型、生產單位、出廠編號、檢定員、送檢單位、設備編號、檢定日期等),確定後點擊“開始測量”按鈕;
- 測量完畢後點擊軟體界面上的“記錄管理”按鈕查看檢測記錄,並進行列印等相關操作。
兩個測量面器具
- 按照以上步驟2-4測量第一個被測量面(外角α);如下圖所示
- 第一個面測量完之後,軟體界面上會出現一個提示對話框,提示進入第二個測量面(γ角)的測量,根據提示,調整好被測器具第二個測量面與測頭的相互位置,當測頭示值接近零時,使測頭讀數清零,然後點擊軟體界面上的確定按鈕即可進行測量;
- 之後輸入兩個基面之間的平行度誤差,確定後軟體根據規程換算出內角β(換算公式見下圖所示)。
典型套用
- 三角形直角尺
- 刀口形直角尺
- 方形角尺
- 圓柱直角尺
- 平面形直角尺
- 高精度機械零件
