小區介紹
合生時代帝景外景效果圖基本信息
物業類別:公寓
項目特色:複合地產,豪華居住區,捷運沿線,三至四環
建築類別:板樓

裝修狀況:精裝修
所屬區域:朝陽
所屬商圈:朝陽
物業地址:朝陽廣渠路21號
開盤時間:2011
入住時間:2012
容 積 率:2.94
綠 化 率:45%
物業公司:康景物業集團
開 發 商:北京合生愉景房地產開發有限公司
周邊配套
超市:沃爾瑪、家樂福
電影院:東都影城、萬達影城
酒店:北京帝景酒店
學校:陳經倫中國小、啟明國際雙語幼稚園
交通線路
7號線、14號線捷運廣渠路站下即可,公交11、23、30、35、348、486、710、752、852、938、988路等珠江帝景站下即可。
其它信息
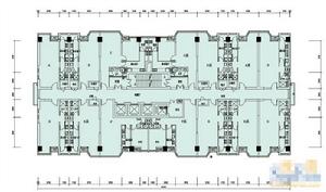
樓層:1號樓共25層,4梯14戶,戶型面積為70平米,3號樓共24層,3梯8戶,戶型面積為130、150平米
占地面積:55000平方米;建築面積:140000平方米
圖片介紹
合生時代帝景日景鳥瞰圖
周邊交通圖
樓盤戶型圖舉例