作用
剛性防水翼環適用於管道穿牆處不承受管道振動和伸縮變形的構(建)築物,適用於管道穿牆處空間有限或管道安裝先於構(建)築物或管道的更新改造。對於有地震設防要求的地區,如採用02S404剛性防水翼環,應在進入池壁或建築物外牆的管道上就近設定柔性連線。
說明
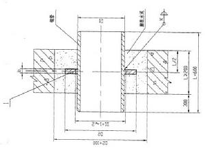
1.穿管處混凝土牆或磚牆厚度應不小於200,否則應使牆壁一邊或兩邊加厚。
2.焊接結構尺寸公差與形位公差按照JB/5000.3-1998執行。焊接採用手工電弧焊,焊條型號E4303,牌號J422,焊縫坡口的基本形式與尺寸按照GB958-88執行。
3.當鋼管垂直安裝時,可採用灌漿料或混凝土代替膨脹水泥。
材質
翼環材質Q235-A
安裝圖
剛性防水翼環安裝圖