中間電位作業

中間電位作業

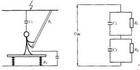
中間電位作業帶電作業時作業人員處於帶電體電位與地電位之間電位上的作業。

概述

中間電位作業指人體處於接地體和帶電體之間的電位狀態,使用絕緣工具間接接觸帶電設備來達到其檢修目的的方法。人體處於中間電位下,占據了帶電體與接地體之間一定空間距離,即要對接地體保持一定的安全距離,又要對帶電體保持一定的安全距離。
中間電位作業示意圖中間電位作業示意圖

適用範圍

中間電位作業是作業人員通過絕緣工具(梯、台、車)對大地絕緣後在近距離用絕緣工具對帶電作業進行的作業,故此種作業方法主要適用於作業點離大地較近,或作業點設備複雜採用地電位作業完成較困難,用等電位作業又具有一定危險性的場合。

常用工具

此種作業方法常用工(器)具主要有絕緣梯、絕緣斗臂車、絕緣繩絕、緣操作桿絕緣滑車組、絕緣子卡具、通用小工具和禁止服,其性能除應符合《安規》及有關專業標準規定。

一般要求

1)登梯作業電工必須穿戴全套禁止服,且各部連線可靠。(2)作業電工操作時所處位置與帶電體和接地體所形成的雙組合間隙距離應符合《安規》規定。對在500KV直線塔中相塔窗內更換單片絕緣子作業時所形成的多組合間隙,其實全水平必須經過模擬操作波放電實驗確認可靠後才能採用此種作業方法。(3)作業電工操作時所處位置與帶電體距離不得小於1.0m

相關搜尋

熱門詞條

聯絡我們