產品簡圖
型號:H71H/W 對夾升降式直通止回閥型號:H71H/W 對夾升降式直通止回閥
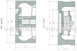
H71H/W對夾升降式直通止回閥 外形尺寸圖H71H/W對夾升降式直通止回閥 外形尺寸圖
結構特點
H71H/W-16/25Q/H/P對夾升降式直通止回閥具有結構緊湊的特點,由閥體、閥瓣及彈簧組成,採用對夾連線,由於對夾升降式直通止回閥的閥瓣的關閉行程短,具有彈簧預載入,避免產生水錘現象。H71H/W-16/25Q/H/P型對夾升降式直通止回閥已被廣泛使用於城建、工業及高層建築的給水、排水管網管路上。主要技術參數
型號 公稱壓力(MPa) 試驗壓力(MPa) 適用溫度
(℃) 適用介質
殼體 密封
H71H-16Q 1.6 2.4 1.76 ≤235 水、蒸汽、油品等
H71H-25Q 2.5 3.75 2.75 ≤235
H71W-25H ≤300
H71W-25P ≤200 硝酸等腐蝕性介質
H71W-40H 4.0 6.0 4.4 ≤300 水、蒸汽、油品等
H71W-40P ≤200 硝酸等腐蝕性介質
主要零件材料
型號 閥體 閥瓣 彈簧H71H-16Q 、H71H-25Q QT400-15 25 50CrVA
H71W-25H、 H71W-40H 2Cr13 1Cr13 1Cr18Ni9Ti
H71W-25P 、H71W-40P ZG1Cr18Ni9Ti 1Cr18Ni9Ti 1Cr18Ni9Ti
主要外形連線尺寸
型號 公稱通徑DN(mm) L D
1.6 2.5 4.0
H71H-16Q
H71H-25Q
H71W-25H
H71W-25P
H71W-40H
H71W-40P 15 25 48 48 48
20 31.5 58 58 58
25 35.5 68 68 68
32 40 80 80 80
40 45 90 90 90
50 56 105 105 105
65 63 125 125 125
80 71 140 140 140
100 80 160 165 165
125 110 190 195 195
150 125 215 225 225
200 160 270 285 290
250 200 330 340 350
300 250 385 400 415
