簡述
管路圖是指通常以管路與管件為主體,用來指導生產與施工的工程技術圖樣。
現代化的石油、天然氣的生產與輸送,煉油、化工產品的生產與儲存,建築工程中的供水與供氣等,都需要通過管道來實現。因此,管道工程的設計與施工,已成為現代化生產建設中的一個重要組成部分。管道通常需要用法蘭、彎頭、三通等管件連線起來,還要與塔罐、機泵、閥門、容器、控制件、測量表等設備有機的連線成系統。
定義
管路布置圖以管路的工藝流程圖和總平面布置圖為基礎,因此先介紹工藝流程圖。
工藝流程圖
局部工藝流程圖工藝流程圖是用來表明生產過程中的運行程式的圖樣,是一種示意性的工藝程式展開圖其屬於工程基礎設計。
典型的工藝流程圖中包括的資料有數量、移動距離、所做工作的類別以及所用的設備,也可以包括工時。為了便於列出工藝流程圖,一般均採用國際通用的記錄圖形符號來代表生產實際中的各種活動和動作,用圖形符號表明工藝流程所使用的機械設備及其相互聯繫的系統圖。
工藝流程圖形象地反映了化工生產由原料進入到產品輸出的過程,其中包括物料和能量的變化,物料的流向以及生產中所經歷的工藝流程和使用的設備儀表。工藝流程圖集中地概括了整個生產過程的全貌。
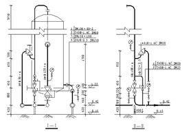
管路布置圖
管路布置圖管路布置圖以管路的工藝流程圖和總平面布置圖為基礎設計繪製出,用來指導工程的施工安裝。
管路布置圖中一般應繪製出全部工藝管路和輔助管路,當管路較複雜時也可分別畫出。對不同的管路必須用標準所規定的管路圖示符號繪製,以表達出管路的走向和相互間的位置關係。當局部管路較密集表達欠清楚時,可畫出其局部放大圖。
管路中的各種類型的管件,必須採用管件和閥件圖示符號和連線圖示符號繪製出來。
工程管路布置圖中,需要標註管路的平面布置和安裝標高尺寸,標註設備和管件的代碼、編號及尺寸等,並注寫必要的文字說明。標註尺寸時常以建築定位軸線、設備的中心線、管路的延長線等為尺寸界線;尺寸線的起始點可採用45°的短細斜線來代替箭頭,尺寸常標註成連續的串聯形式。通常平面圖中的尺寸以毫米為單位,而標高尺寸則以米為單位。
管路圖示符號
管路圖是用標準所規定的各種圖形符號和代號繪製而成的。管路圖示符號包含管線、管件、聯接等圖示符號和物料代號組成。
管路圖示符號(1)管線圖示符號
管道工程中的管線一般用單線表示,對大徑或重要管線也可用雙線表示。由於所觀察(投影)的方向不同,管線多由平面和立面兩種圖示符號表示(就是俯視圖和主視圖)。右圖中圖1即為部分管線圖示符號。
(2)管件與閥件圖示符號
在工程管路中的管件與閥件起著流向、流量等重要的控制作用。右圖中圖2即為管路圖中所常用的管件與閥件的圖示符號。
(3)管路連線符號
通常管線需要使用聯接件將其連線起來,根據情況可選擇不同的聯接方式。右圖中圖3即為部分管路連線符號。
(4)管路物料代號
在管道工程圖樣中,為了區別不同用途和物料的管線,常需要標明管線用途代號。現將管路圖中所常用的物料代號列於下表。
| 名稱 | 物料代號 | 英文名稱 | 名稱 | 物料代號 | 英文名稱 |
| 油 | O | Oil | 蒸汽 | S | Steam |
| 水 | W | Water | 煤氣 | CG | Coal Gas |
| 空氣 | A | Air | 天然氣 | NG | Natural Gas |
管路布置的基本原則
管路布置中必須遵循以下原則:
(1)首先全面地了解工程對管路布置的要求,充分了解工藝流程、建築結構、設備及管口配置等情況。對工程管路作出合理的初步布置;
(2)冷熱管道應分開布置,難避免時應熱管在上冷管在下。有腐蝕物料的管道,應布置在平列管道的下側或外側。管道敷設應有坡度,坡度方向一般均沿物料流動方向;
(3)管道應集中架空布置,儘量走直線少拐彎,管道應避免出現‘氣袋’和‘盲腸’。支管多的管道應布置在並行管道的外側,分支氣體管從上方引出,而液體管在下方引出;
(4)通過道路或受負荷地區的地下管道,應加保護措施。行走過道頂的管道至地面的高度應高於2.2米。有一定重量的管道和閥門,一般不能支承在設備上;
(5)閥門要布置在便於操作的部位,對開關頻繁的閥門應按操作順序排列。重要的閥門或易開錯的閥門,相互間要拉開一定的距離,並塗刷不同的顏色。
讀圖的方法步驟
閱讀管路布置圖,無論是審查設計、安裝施工,還是參考借鑑、維修改造,主要是通過圖樣了解工程管路的設計意圖,以及弄清管道、管件、閥門、儀表、設備等的具體布置安裝情況。因此讀管路布置圖應按以下方法步驟進行:
(1)概括了解:首先概括了解工程管路的視圖配置、數量及各視圖的表達內容。並初步了解圖例、代號的含義,及非標準型管件、管架等的圖樣。然後瀏覽設備位號、管口表、施工要求以及各不同標高的平面布置圖等;
(2)布置分析:首先根據流程次序,按照管道編號,逐條弄清管道的起始點及終止點的設備位號及管口。並依照布置圖的投影關係、表達方法、圖示符號及有關規定,搞清每條管道的來龍去脈、分支情況、安裝位置,以及閥門、管件、儀表、管架等的型號和布置情況;
(3)尺寸分析:通過對管路布置圖中的尺寸分析,可了解管道、設備、管口、管件等的定位情況,以及它們間的相互距離關係。並對其他標註進行分析,從而可搞清各管路中的工藝物料、管道直徑、閥門型號、管件規格、安裝要求等。

