停放車
正文
車輛停止運行,進入非工作狀態,並停置於某一地方,又稱“靜態交通”。車輛運行相應地稱為“動態交通”。安排好車輛停放是避免交通阻塞、保證交通安全、提高道路運輸效率的必要措施。停放車方式 車輛停放的基本方式有路上停放和路外停放兩種。路上停放是車輛在道路一側或兩側沿路緣石停放。一般允許車輛在交通量小、車行道寬的道路上,以及在路肩或較寬的分隔帶上作短時間的臨時性停放。路外停放是車輛在道路以外專辟的停車場所停放。路外停車場所能夠容納較多的車輛,車輛可停放較長的時間。
停車場所 供車輛路外停放用的場所。
組成 路外停車場所由三個主要部分組成。①進出口,是場內道路與外部道路連線的部分,它的設計既要便利車輛進出車場,又不能影響場外的道路交通;②車行道,是場內車輛進出的通道,須根據車輛停置形式和場內交通路線來布置;③停車坪,是車輛停放的區域,並供乘客上下車之用。
種類 路外停車場所主要有停車場、停車樓、停車庫三種。
停車場按服務對象可分為專用停車場和公共停車場。前者多設在某一單位建築物周圍,供該單位內部使用;後者是按交通規劃設定的社會性停車場,如商業網點、娛樂場所、觀光遊覽地區、城市周圍和高速公路沿線服務區以及高架橋下的停車場。停車場按所處空間位置可分為:①地面停車場。地面上專辟的廣場式停車場。車輛進出方便,但用地較多。②地下停車場。按照城市規劃建在公園、道路或廣場等地下的停車場。地下停車場的修建工程量大、費用多,但容納量大,使用便利,不占城市用地。修建地下停車場要選擇合適的位置和結構形式,全面考慮進出口形式、通風、排水、照明、機械設施等。③屋頂停車場。修建在建築物頂上的停車場。可節省用地,但容量不大。
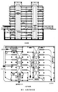
停車樓是一種高層式停車場所,容納量大,土地利用率高。停車樓有自行式(坡道式)和機械式兩種。自行式是由司機駕駛車輛從坡道上進出停車樓,車輛出入迅速便利,修建和維修等費用較少,採用較多;機械式是藉助於升降機械或傳送機械運送存放車輛(圖1)。
運送方式有鏇轉升降式、垂直升降式、升降滑板式、平面往復式和多層循環式,可根據條件選用。 停車庫一般設在建築物的地下室。
車輛停置形式 車輛停放時車位的布置形式,有垂直式、平行式、斜角式三種(圖2)。
垂直式即車輛垂直於通道停放。採用這種形式,一定長度內停放的車輛數最多,用地較省,但停車帶較寬(以最大型車的車身長度為準),車輛進出車位要倒車一次,須留較寬的通道。平行式即車輛平行於通道停放。採用這種形式,停車帶較窄,車輛駛出方便,適宜停放不同類型、不同車身長度的車輛。但一定長度內停放車輛數最少。斜角式即車輛與通道成斜交角度停放。一般按30°、45°、60°三種角度停放。採用這種形式,停車頻寬度隨車身長度和停放角度而異。斜角式適用於場地寬度受限制的停車場,車輛停放比較靈活,車輛駛入和駛出方便,可迅速停置和疏散。車輛停置形式按所停放車輛的車型、停車場的面積和形狀選定。 停放車管理 在停放車管理上常採用收費的辦法。在可停放少量車輛的路邊或居住區的小型停車處,常採用免費停車或低費售票停車的辦法。出售的停車票有日票、月票、季票和年票。在較大的停車場則常採取累進收費制。如法國拉羅謝爾市規定在初始停車兩小時免費,第三小時收5法郎,第四小時收20法郎,第五小時收100法郎。這種辦法有利於限制停車時間,提高停車場車位周轉率。有的國家在收費的大停車場每一車位設一台汽車停放計時器,上有收費顯示系統裝置。如果車輛停放在不許停放的地方或超過規定停放的時間,處以罰款。
許多國家在一些城市周圍設有大型停車場,以限制過境車輛入城,乘客可將車輛停放在停車場內,乘公共運輸車輛進入市區。這可以避免增加市區內的交通流量。
參考書目
奧村修一等著:《駐車埸の計畫と設計》,鹿島出版社,東京都,1978。

